M66 - 5-и спальная вилла в районе Паниотис, Лимассол
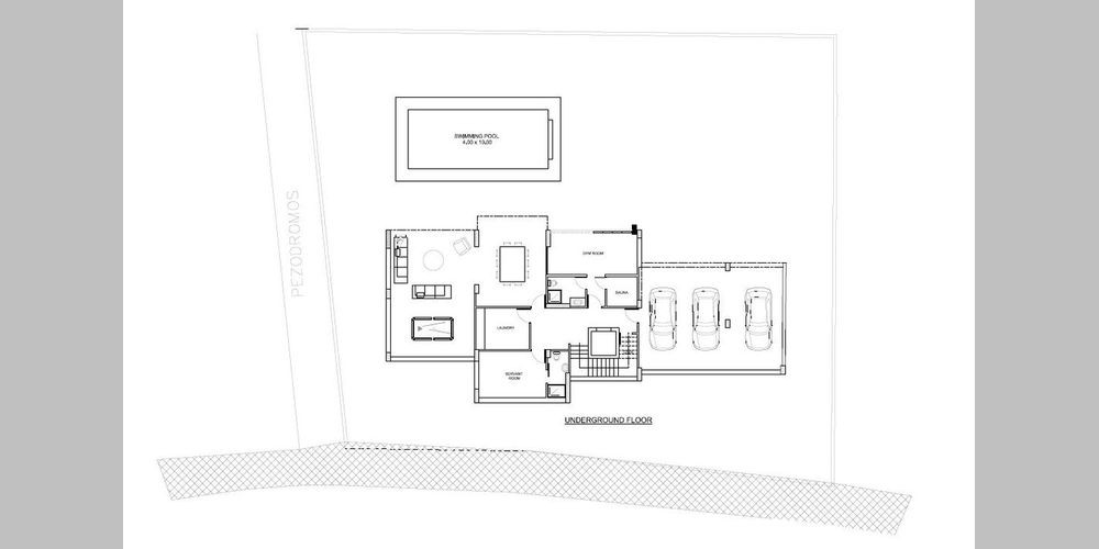
Предлагается современный особняк со впечатляющей гармоничной планировкой и огромными жилыми помещениями, с которых открывается замечательный вид на город Лимассол и Средиземное море. Интерьер дома - с высокими потолками, открытой планировкой и просторными жилыми помещениями. Роскошный стеклянный лифт обслуживает все три этажа. Вы будете наслаждаться элегантной отделкой, высококачественным напольным покрытием, итальянским дизайном и архитектурными деталями. На первом этаже находится гостиная, столовая, итальянская кухня, ТВ-комната для семейного отдыха, кабинет и гостевой туалет. На втором этаже находится главная спальня с просторной ванной комнатой с видом на сад, город и море, а также еще три спальни с ванными комнатами и гардеробная. На цокольном этаже располагается пятая по счету спальня с ванной комнатой, прачечная, винный погреб, тренажерный зал и сауна, а также отдельная душевая комната и туалет. Крытое помещение размером 80м2 предлагается как место для отдыха и игры в бильярд с выходом к бассейну и в сад. Рядом находится просторный гараж.
Юниты проданы либо зарезервированы.


















