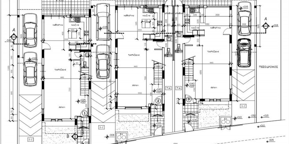
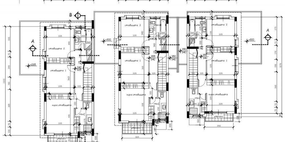
P96 - Комплекс из 3 просторных вилл в Ороклини, Ларнака
Виллы расположены в Ороклини, всего в 5 минутах от пляжа и в непосредственной близости от местных достопримечательностей, ресторанов и супермаркетов. Всего за 15 минут можно добраться до международного аэропорта Ларнаки, есть легкий доступ к шоссе в Никосию и Лимассол.
Дома будут энергоэффективными: летом прохладнее, а зимой теплее.
Виллы будут укомплектованы душевыми и гостевыми туалетами, гранитными столешницами и будут иметь крытую парковку. Внешняя отделка домов также включает использование обширных поверхностей из мрамора, камня и HPL для улучшения дизайна здания. В домах будут стеклянные перила на верандах, зона барбекю с гранитной столешницей и дополнительное пространство над гаражом.
Проект имеет сертификат энергоэффективности Class "B".
Юниты проданы либо зарезервированы.









