Q02 - Квартиры в 330 метрах от моря в Ороклини, Ларнака
Статус недвижимости:
Строительство завершено
Расположение:
Кипр, Ларнака, Oroklini (северо-восточный пригород Ларнаки)
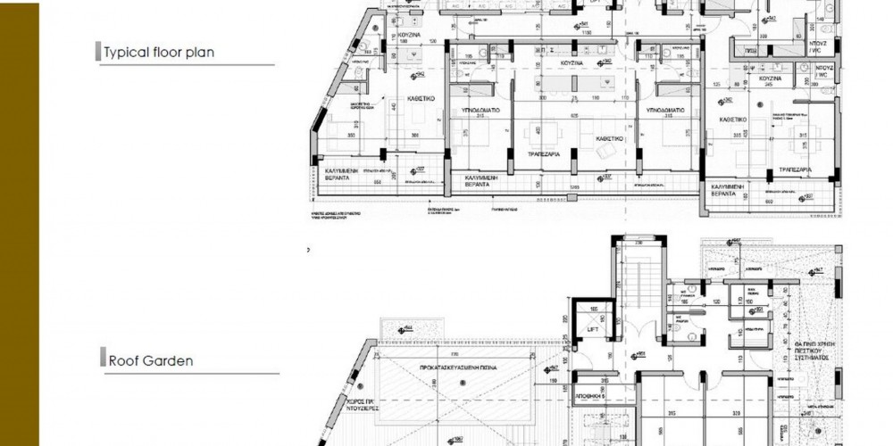
Расположенное в самом сердце прибрежной туристической зоны Ларнаки, в отличном месте, в нескольких шагах от кафе, баров, ресторанов и пляжей Ларнаки, отмеченных Голубым флагом, здание предлагает просторный бассейн на крыше с удобствами для отдыха на открытом воздухе, 3 этажа квартир, просторный цокольный этаж и впечатляющий вестибюль с крытыми парковочным...
Расположенное в самом сердце прибрежной туристической зоны Ларнаки, в отличном месте, в нескольких шагах от кафе, баров, ресторанов и пляжей Ларнаки, отмеченных Голубым флагом, здание предлагает просторный бассейн на крыше с удобствами для отдыха на открытом воздухе, 3 этажа квартир, просторный цокольный этаж и впечатляющий вестибюль с крытыми парковочными местами для всех жителей здания.
В проекте используется фотоэлектрическая технология энергии для защиты окружающей среды, экономии потребления и эксплуатационных расходов, энергоэффективности и снижения воздействия здания на окружающую среду.
Проект имеет сертификат энергоэффективности Class "B".
Площади и Цены
Юниты проданы либо зарезервированы.
Продано & Зарезервировано
101
- Апартаменты
Спальни:
1
Площадь:
67 m2
Зарезервировано
102
- Апартаменты
Спальни:
2
Площадь:
109 m2
Зарезервировано
103
- Апартаменты
Спальни:
2
Площадь:
113 m2
Зарезервировано
201
- Апартаменты
Спальни:
1
Площадь:
67 m2
Зарезервировано
202
- Апартаменты
Спальни:
2
Площадь:
109 m2
Зарезервировано
203
- Апартаменты
Спальни:
2
Площадь:
113 m2
Зарезервировано
Расположение на карте
Схемы и планы








