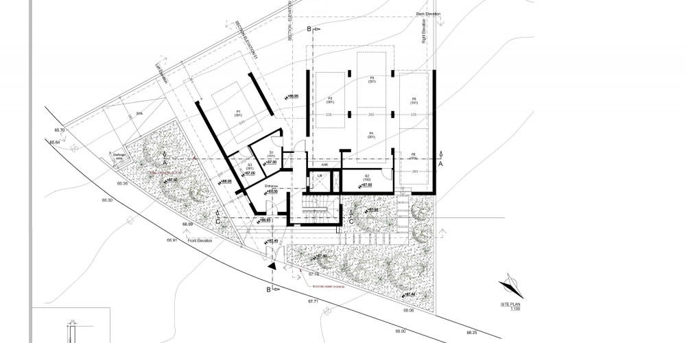
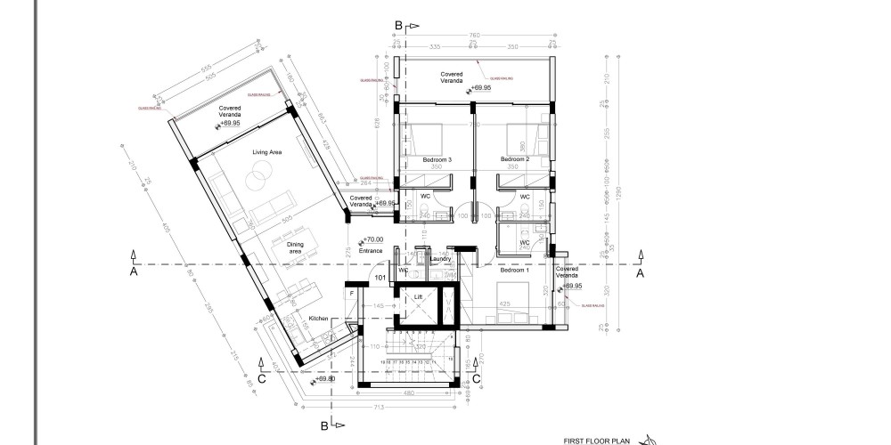
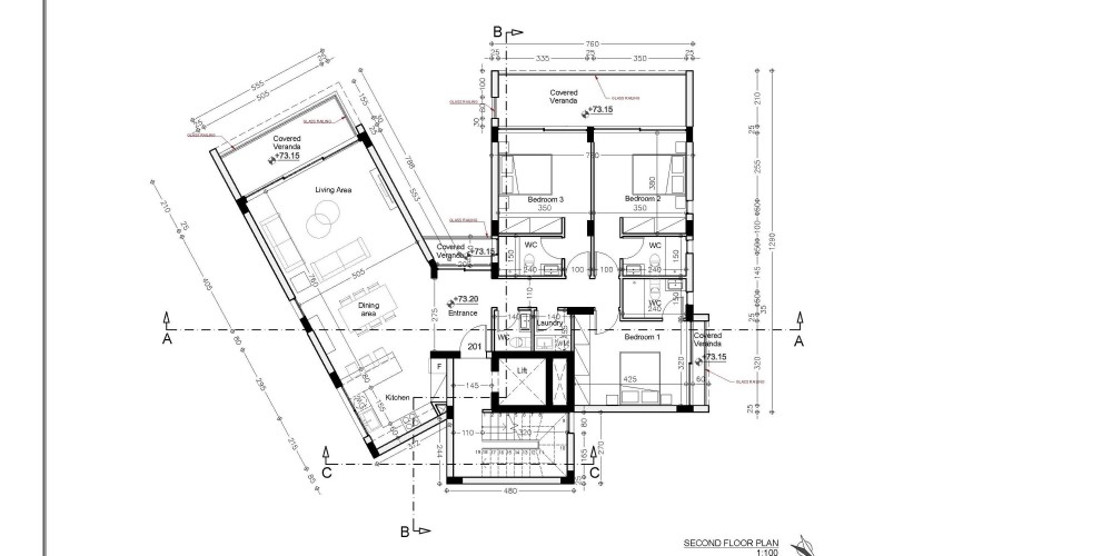
S281 - Современный блок 3-х спальных квартир с видом на море в центре Пафоса





Это жилое здание будет состоять из 3-х спальных квартир с видом на море и будет расположено в центре города Пафос.
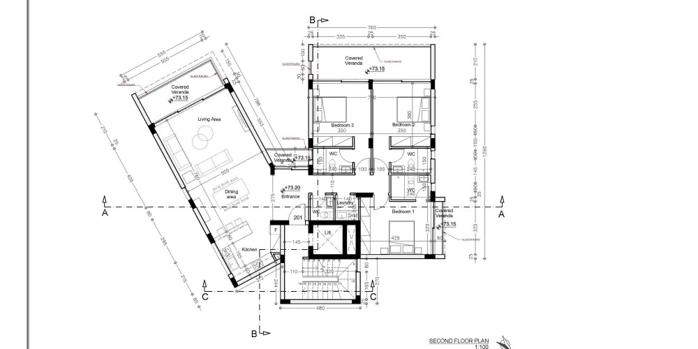
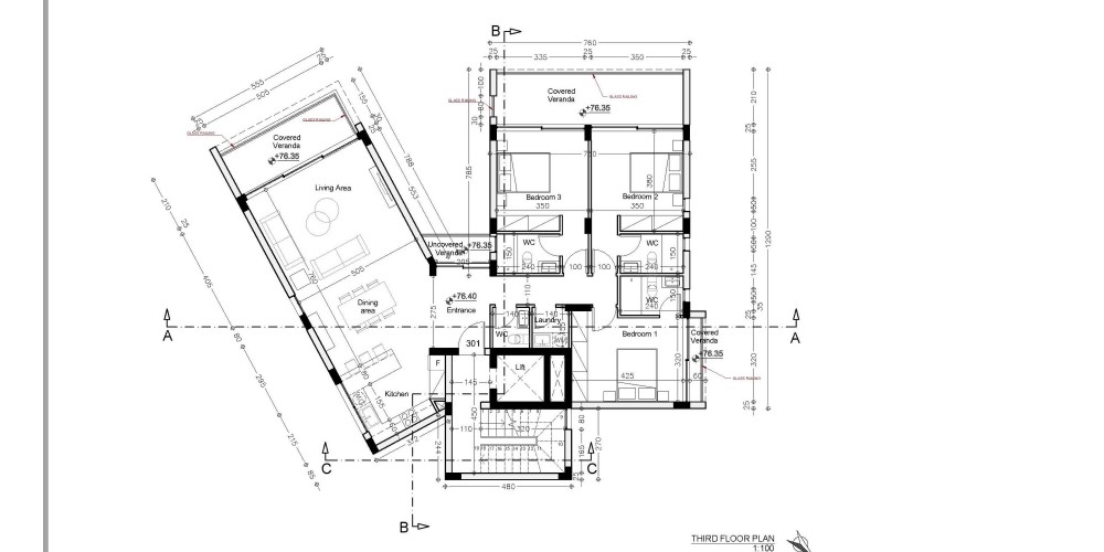
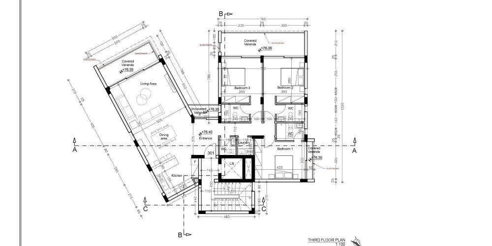
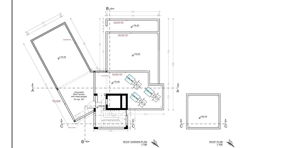
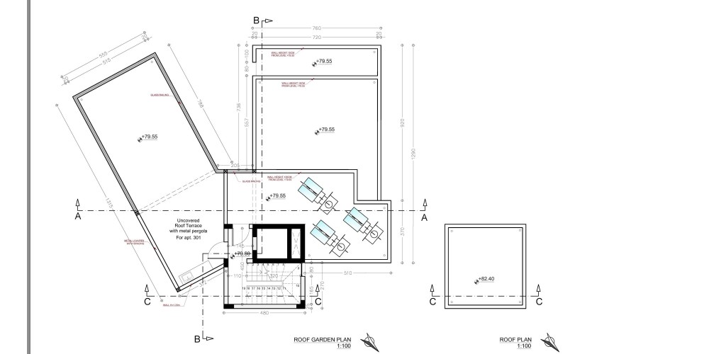
Современные линии здания и V-образный вид сверху придают ему уникальный характер. Всего 3 этажа, на каждом по одной 3-х комнатной квартире. Внутри каждой квартиры очень просторно, с открытым пространством между кухней и гостиной. Все спальни имеют собственный туалет и ванную комнату, а также выход на крытую веранду. Все квартиры идентичны по планировке, за исключением пентхауса, который имеет большую открытую и полукрытую террасу на крыше. Каждая квартира дополнена прачечной, гостевым туалетом, крытой парковкой и кладовой.
Проект находится в непосредственной близости от моря, набережной и гавани Пафоса, торгового центра и всех удобств в центре города.
Проект имеет сертификат энергоэффективности Class "B".
Юниты проданы либо зарезервированы.
S701 - Комплекс вилл, квартир с 2 спальнями и мезонетов с 3 спальнями, а также магазинов в центральной части Пафоса
S738 - Четырехэтажное жилое здание с 28 квартирами, расположенное в самом сердце Старого города Пафоса, рядом со всеми удобствами
S793 - Современный комплекс с просторными квартирами, предлагающий услуги консьержа и уборку, частные парковочные места, кафе и магазины в центре Пафоса
S890 - Комплекс с частными тренажерными залами, бассейнами, теннисным кортом и выделенными зонами отдыха в пешей доступности от пляжа в Пафосе





