S284 - Квартиры в районе Пантеа, Лимассол
Статус недвижимости:
Строительство завершено
Расположение:
Кипр, Лимассол, Пантеа (район в Меса Гейтония)
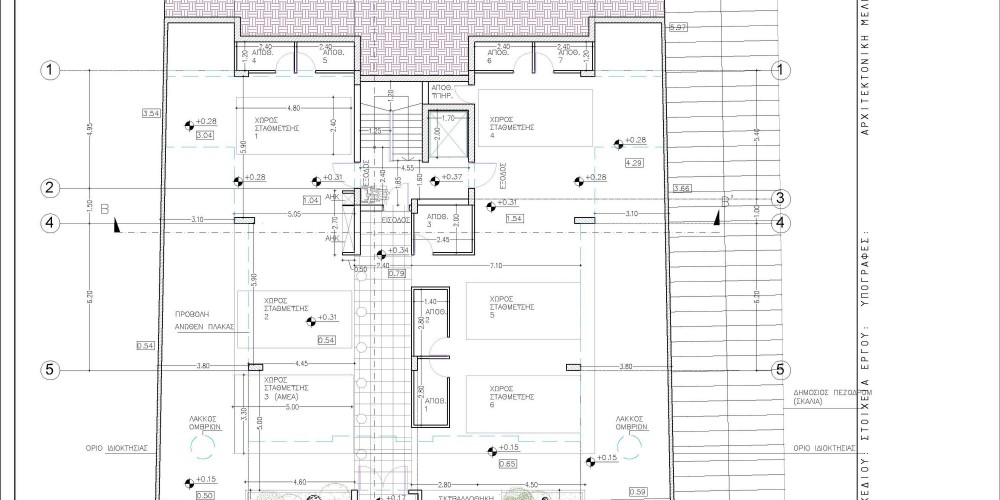
Это трехэтажное здание состоит из пяти квартир и пентхауса.
Проект, расположен в районе Пантея и предлагает идеальное сочетание спокойствия и удобства. Вы будете наслаждаться легким доступом к центру города, находясь в окружении безмятежной обстановки. Внимание к деталям и приверженность качеству гарантируют, что проект превзойдет ваши ожидания....
Это трехэтажное здание состоит из пяти квартир и пентхауса.
Проект, расположен в районе Пантея и предлагает идеальное сочетание спокойствия и удобства. Вы будете наслаждаться легким доступом к центру города, находясь в окружении безмятежной обстановки. Внимание к деталям и приверженность качеству гарантируют, что проект превзойдет ваши ожидания.
Каждая квартира будет иметь кладовую и крытое парковочное место.
Проект имеет сертификат энергоэффективности Class "B".
Площади и Цены
Юниты проданы либо зарезервированы.
Продано & Зарезервировано
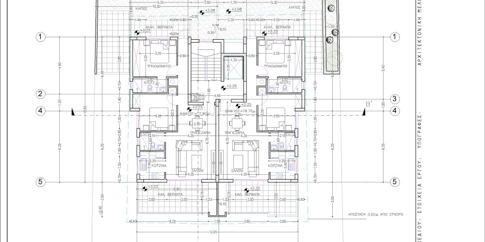
101
- Апартаменты
Спальни:
2
Площадь:
121 m2
Продано
102
- Апартаменты
Спальни:
2
Площадь:
116 m2
Зарезервировано
201
- Апартаменты
Спальни:
2
Площадь:
97 m2
Продано
202
- Апартаменты
Спальни:
2
Площадь:
99 m2
Зарезервировано
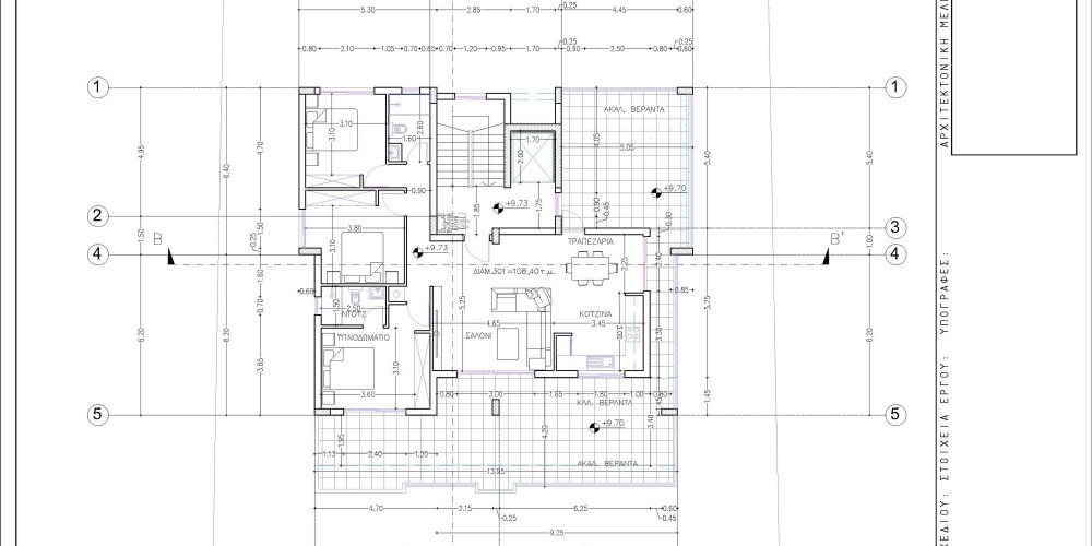
301
- Апартаменты
Спальни:
3
Площадь:
195 m2
Продано
Расположение на карте
Схемы и планы
Погода
30
Октября
2025








