S871 - Экологически чистое жилое здание в центральной части Никосии
Статус недвижимости:
Завершение строительства - Декабрь 2027г.
Расположение:
Кипр, Никосия
Жилое здание, расположенное в центральной части Никосии. Проект предлагает выбор квартир, построенных по высоким стандартам строительства и стиля. Этот экологически чистый комплекс сочетает в себе устойчивость с современной жизнью. Его выгодное расположение обеспечивает доступ к школам, супермаркетам, больницам.
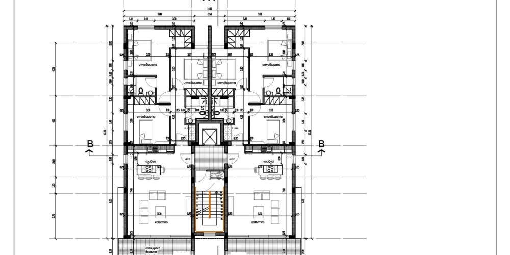
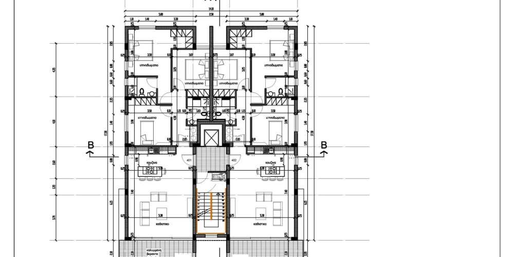
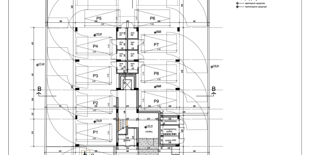
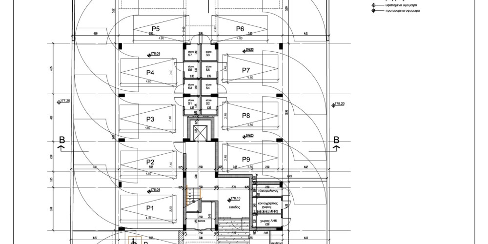
Проект будет иметь 9 квартир. Кажда...
Жилое здание, расположенное в центральной части Никосии. Проект предлагает выбор квартир, построенных по высоким стандартам строительства и стиля. Этот экологически чистый комплекс сочетает в себе устойчивость с современной жизнью. Его выгодное расположение обеспечивает доступ к школам, супермаркетам, больницам.
Проект будет иметь 9 квартир. Каждая квартира включает кухню открытой планировки и гостиную, а также просторные крытые веранды.
Комплекс включает в себя передовые функции безопасности, включая контролируемые ворота для парковки и главного входа, доступ к которым осуществляется через безопасную систему паролей.
Проект имеет сертификат энергоэффективности Class "A".
Площади и Цены
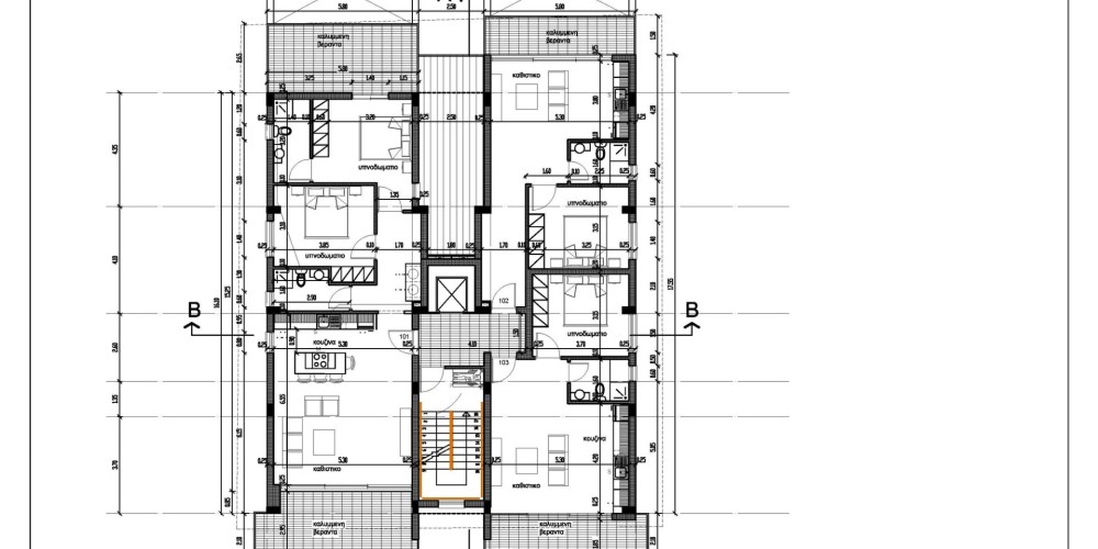
101
- Апартаменты
Спальни:
2
Площадь:
122 m2
€ 280,000 + НДС
Внутренняя Площадь:
89 m2
Крытая веранда:
33 m2
Цена за кв.м:
€ 2,295
Кладовая:
Да
Парковка:
1
Дополнительная информация
×
102
- Апартаменты
Спальни:
1
Площадь:
61 m2
€ 170,000 + НДС
Внутренняя Площадь:
52 m2
Крытая веранда:
9 m2
Цена за кв.м:
€ 2,787
Кладовая:
Да
Парковка:
1
Дополнительная информация
×
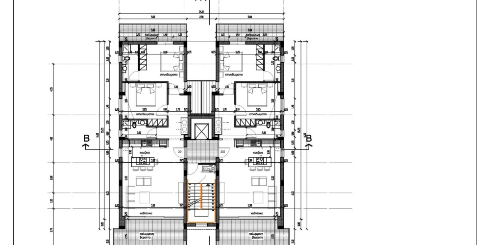
201
- Апартаменты
Спальни:
2
Площадь:
116 m2
€ 285,000 + НДС
Внутренняя Площадь:
89 m2
Крытая веранда:
27 m2
Цена за кв.м:
€ 2,457
Кладовая:
Да
Парковка:
1
Дополнительная информация
×
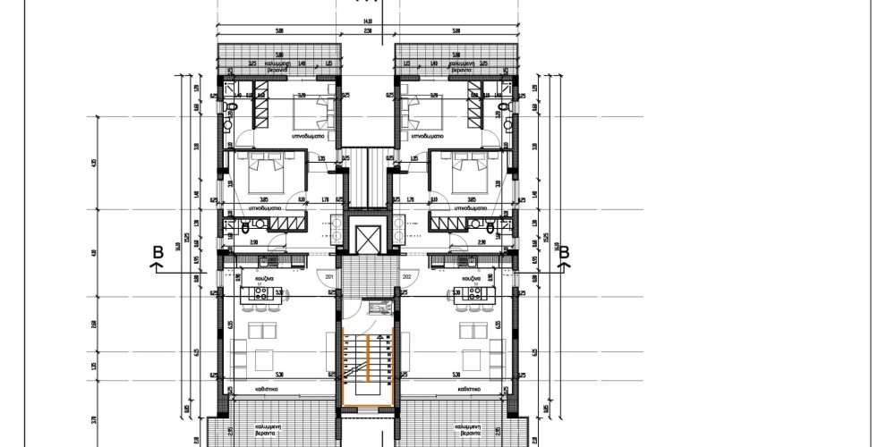
302
- Апартаменты
Спальни:
2
Площадь:
107 m2
€ 295,000 + НДС
Внутренняя Площадь:
89 m2
Крытая веранда:
18 m2
Цена за кв.м:
€ 2,757
Кладовая:
Да
Парковка:
1
Дополнительная информация
×
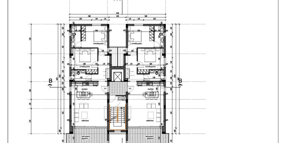
401
- Апартаменты
Спальни:
3
Площадь:
122 m2
€ 380,000 + НДС
Внутренняя Площадь:
109 m2
Крытая веранда:
13 m2
Цена за кв.м:
€ 3,115
Кладовая:
Да
Парковка:
1
Дополнительная информация
×
402
- Апартаменты
Спальни:
3
Площадь:
122 m2
€ 380,000 + НДС
Внутренняя Площадь:
109 m2
Крытая веранда:
13 m2
Цена за кв.м:
€ 3,115
Кладовая:
Да
Парковка:
1
Дополнительная информация
×
Расположение на карте
Схемы и планы
Погода
26
Октября
2025












