A0348 - Villa in Larnaca suburb (Oroklini)
Property status:
Delivery - December 2027
Location:
Cyprus, Larnaca, Oroklini (the North-Eastern suburb of Larnaca)
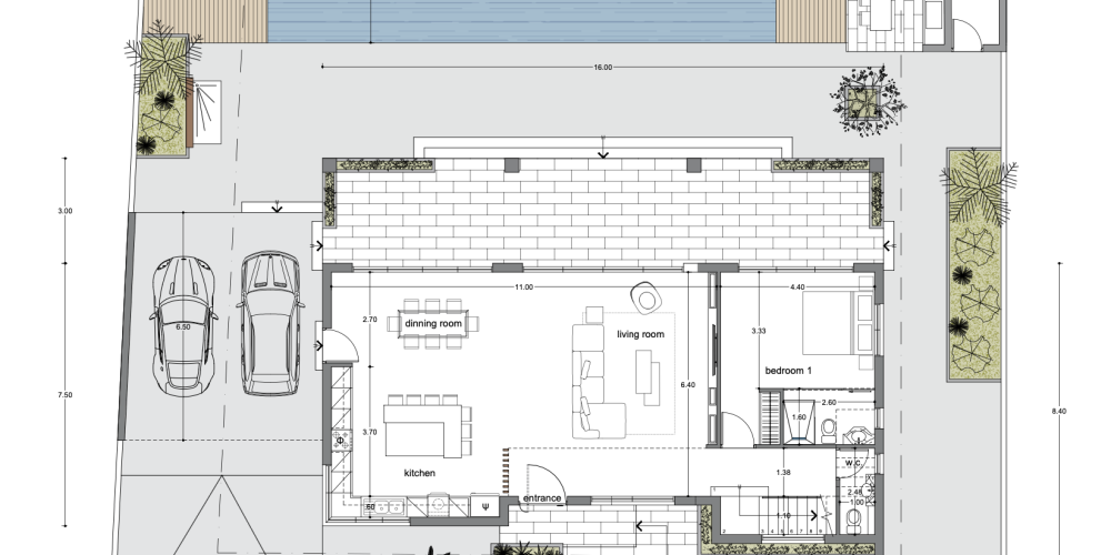
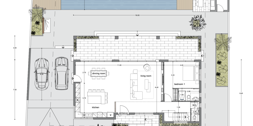
This 3-floor, 5-bedroom luxury villa in Oroklini, Larnaca, offers modern design, premium amenities, and stunning views. Set on a 600-square-meter plot, it features an open-plan kitchen with an island, a dining area, and a spacious living room. Outdoor spaces include verandas, a BBQ area, an outdoor shower, and a 13-meter swimming pool. The fir...
This 3-floor, 5-bedroom luxury villa in Oroklini, Larnaca, offers modern design, premium amenities, and stunning views. Set on a 600-square-meter plot, it features an open-plan kitchen with an island, a dining area, and a spacious living room. Outdoor spaces include verandas, a BBQ area, an outdoor shower, and a 13-meter swimming pool.
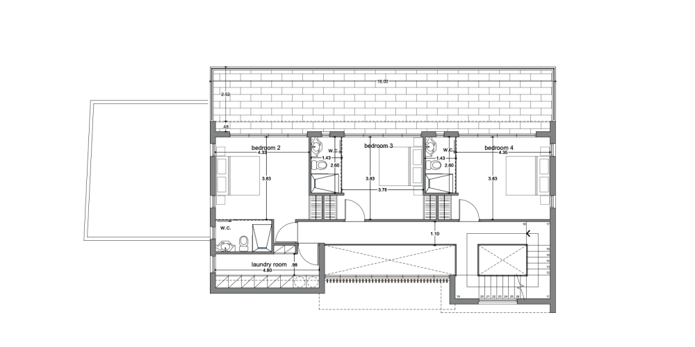
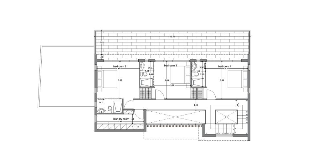
The first floor has spacious bedrooms, each with an en suite WC and shower. The roof garden includes sea views and an additional bedroom. Located near Oroklini Hills, the villa is within walking distance of local amenities and a short drive from Larnaca’s beaches, city center, and marina.
The Project has EPC certificate with "A" Energy Efficiency Rating.
Area & Prices
1
- Villa
Beds:
5
Area:
330 m2
Plot:
600 m2
€ 750,000 + VAT
Inside Area:
330 m2
Price per sq.m:
€ 2,273
Parking Place:
2
Swimming Pool:
private
Additional Information
×
Map Location
Site Map & Floor Plans
Weather
19
November
2025












