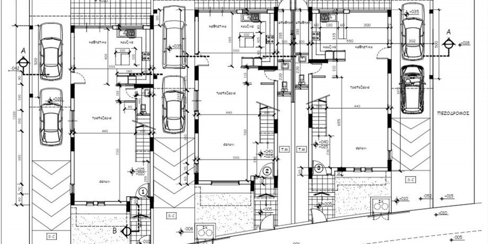
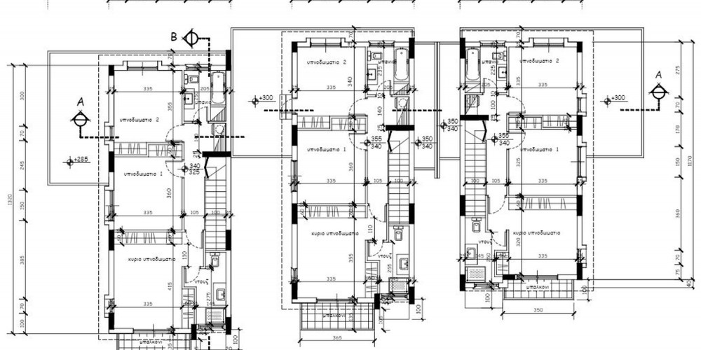
P96 - Complex of 3 spacious villas in Oroklini, Larnaca
The villas are located in Oroklini, just 5 minutes away from the beach and very close to local amenities, restaurants and supermarkets. It takes just 15minutes to get to Larnaca International Airport, with easy access to Nicosia and Limassol highway.
The construction of the houses is energy efficient: cooler in summer and warmer in winter months.
The villas will be completed with en-suite shower rooms and guest toilets, granite worktops and covered parking. The external decoration of the houses also includes the use of extensive marble, stone and HPL surfaces to enhance the artistic design of the building.
The houses will have glass veranda railing, a BBQ area with granite worktop and an additional space above the garage.
The Project has EPC certificate with "A" Energy Efficiency Rating.
All units sold or reserved.









