Q02 - Apartments in 330 meters to the sea in Oroklini, Larnaca
Property status:
Project delivered
Location:
Cyprus, Larnaca, Oroklini (the North-Eastern suburb of Larnaca)
Situated right in the heart of Larnaka’s Coastal Tourist Area in a prime location a few steps away from numerous branded cafes, bars, restaurants and the Larnaka’s Blue Flag beaches, the building offers a roof top spacious swimming pool with outdoor leisure facilities, 3 floors of apartments, spacious ground floor, impressive lobby with covere...
Situated right in the heart of Larnaka’s Coastal Tourist Area in a prime location a few steps away from numerous branded cafes, bars, restaurants and the Larnaka’s Blue Flag beaches, the building offers a roof top spacious swimming pool with outdoor leisure facilities, 3 floors of apartments, spacious ground floor, impressive lobby with covered parking spots for all residents of the building.
The project has utilised Energy photovoltaic technology to respect the environment, save consumption and running costs, energy efficiency, reducing the building impact in the environment.
The Project has EPC certificate with "B" Energy Efficiency Rating.
Area & Prices
All units sold or reserved.
Sold & Reserved Properties
101
- Apartment
Beds:
1
Area:
67 m2
Reserved
102
- Apartment
Beds:
2
Area:
109 m2
Reserved
103
- Apartment
Beds:
2
Area:
113 m2
Reserved
201
- Apartment
Beds:
1
Area:
67 m2
Reserved
202
- Apartment
Beds:
2
Area:
109 m2
Reserved
203
- Apartment
Beds:
2
Area:
113 m2
Reserved
Map Location
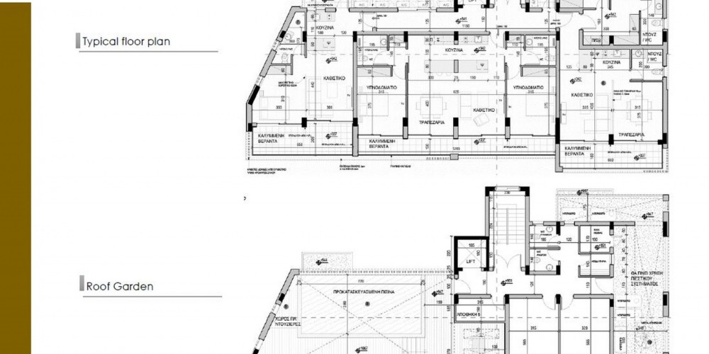
Site Map & Floor Plans
Weather
19
November
2025








