B033 - Luxury apartments in Aglantzia, Nicosia
This prestigious residential development in Aglantzia offers a selection of 2 and 3-bedroom luxury apartments, as well as two 3-bedroom penthouses with uninterrupted views of the Nicosia skyline. Situated on Platy Hill, the project is within walking distance of Athalassas and Academias parks, providing both tranquility and convenient access to urban amenities. The apartments feature oversized verandas, floor-to-ceiling windows, and a contemporary design that maximizes comfort and functionality.
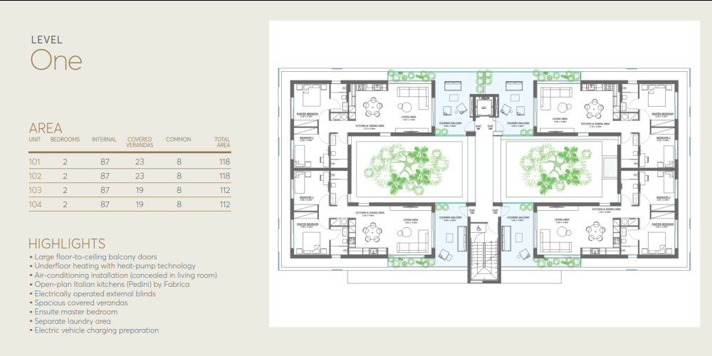
The interiors are equipped with high-end finishes, including European sanitary fittings, underfloor heating with heat-pump technology, and air-conditioning concealed in the living room. The open-plan Italian kitchens and electric vehicle charging preparation add a modern touch to this exceptional project. Buyers have the opportunity to personalize their space with expert guidance, ensuring a home that matches their style and needs.
The main features of the project and the units:
- 2 and 3-bedroom luxury apartments
- 3-bedroom penthouses with panoramic Nicosia skyline views
- Oversized balconies and floor-to-ceiling windows
- High-quality finishes, including European sanitary fittings
- Underfloor heating with heat-pump technology
- Concealed air-conditioning installation
- Open-plan Italian kitchens
- Electric vehicle charging preparation
- Separate laundry area and ensuite master bedroom
- Spacious covered verandas
The Project has EPC certificate with "A" Energy Efficiency Rating.

















