O53 - 1 bedroom apartments close to Nicosia center
Close to the center of Nicosia will be a new residential project; a three floor contemporary building with modern apartments, ideal for families and individuals who want to live in a bustling neighborhood surrounded by amenities and services. The project is within a short distance from schools, business centers and shops, with easy access to all areas of the city and particularly the city center.
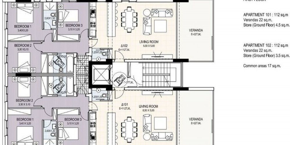
The building comprises of 1-bedroom apartments that feature generous living areas, functional layout, covered verandas and parking. The apartments will be finished with underfloor central heating (with heat pump) and A/C provisions. The building will be serviced by a modern elevator with decorated cartridge and the building’s façade will be distinctive with decorative aluminium panels that double as shading devices.
The Project has EPC certificate with "A" Energy Efficiency Rating.
All units sold or reserved.














