M30 - Offices in the central area of Nicosia
Property status:
Project delivered
Location:
Cyprus, Nicosia, Strovolos (a district in the Southern part of Nicosia)
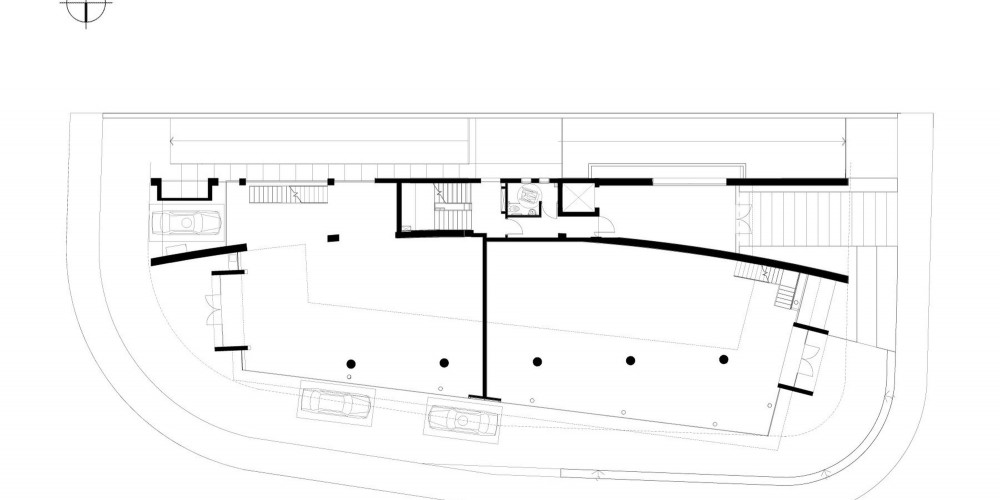
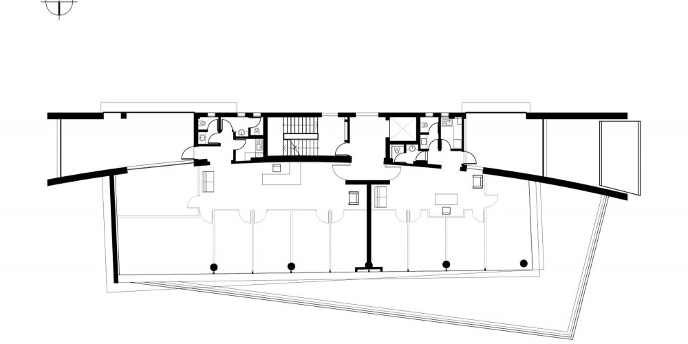
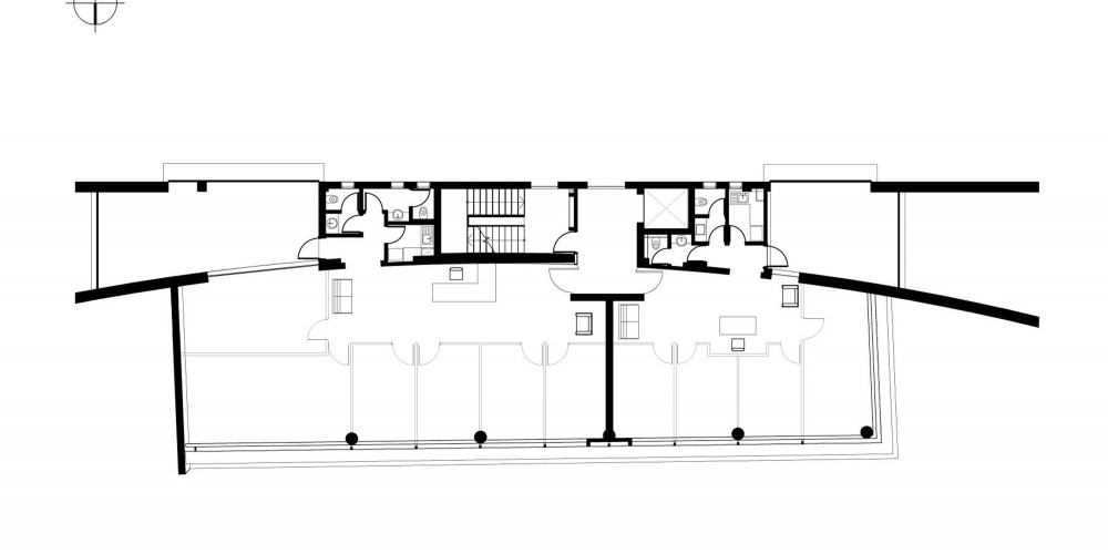
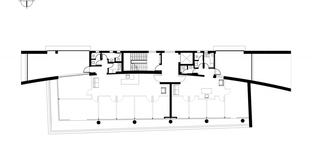
The building is centrally located in Nicosia and within easy access to the highways thus making it ideal base for an office space. The building consists of two stores located on the ground floor with large retail spaces and mezzanines, and three floors specifically designed for office use. There are two basement levels for parking, with the space for the ...
The building is centrally located in Nicosia and within easy access to the highways thus making it ideal base for an office space. The building consists of two stores located on the ground floor with large retail spaces and mezzanines, and three floors specifically designed for office use. There are two basement levels for parking, with the space for the occupants’ needs.
The Project has EPC certificate with "A" Energy Efficiency Rating.
Area & Prices
All units sold or reserved.
Sold & Reserved Properties
K1
- Shop
Beds:
Area:
315 m2
Sold
K2
- Shop
Beds:
Area:
315 m2
Sold
F1
- Office
Beds:
Area:
344 m2
Sold
F2
- Office
Beds:
Area:
344 m2
Sold
F3
- Office
Beds:
Area:
349 m2
Sold
Map Location
Site Map & Floor Plans
Weather
15
November
2025








