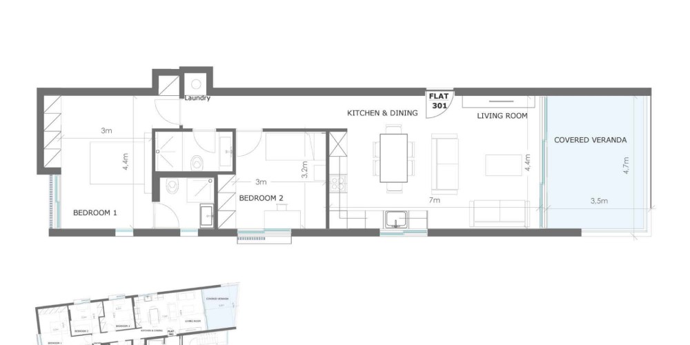
B103 - Apartments on Pernera Hill, Nicosia
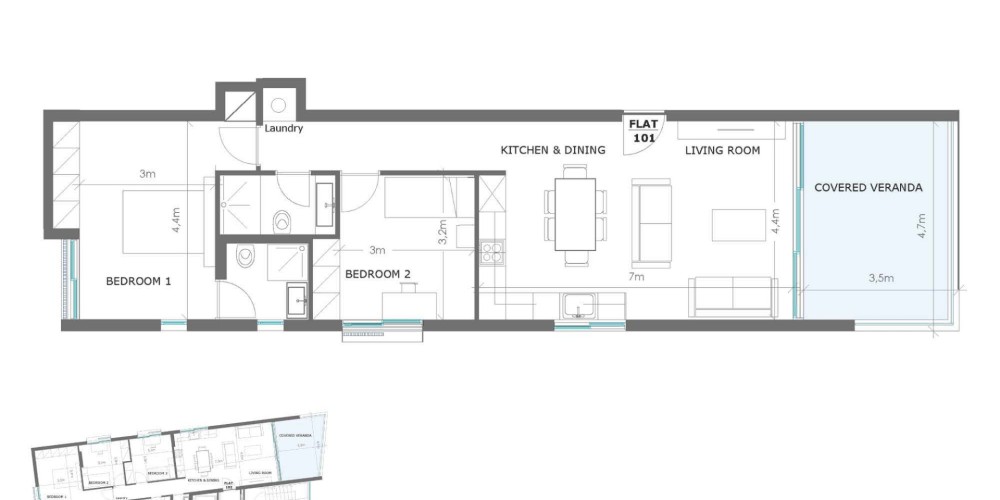
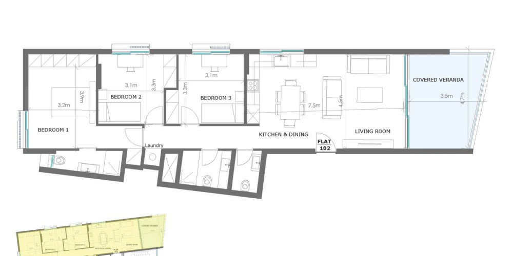
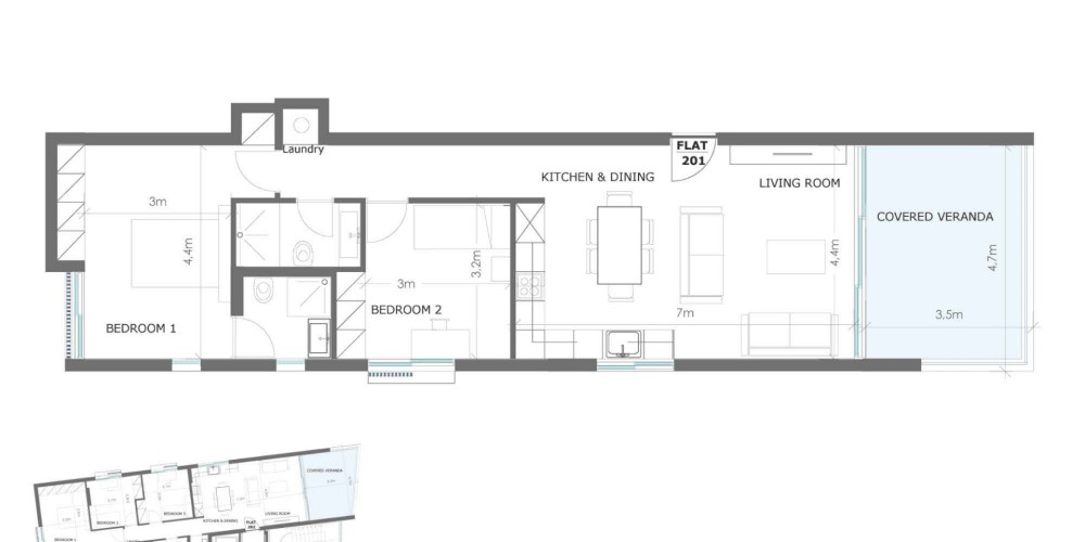
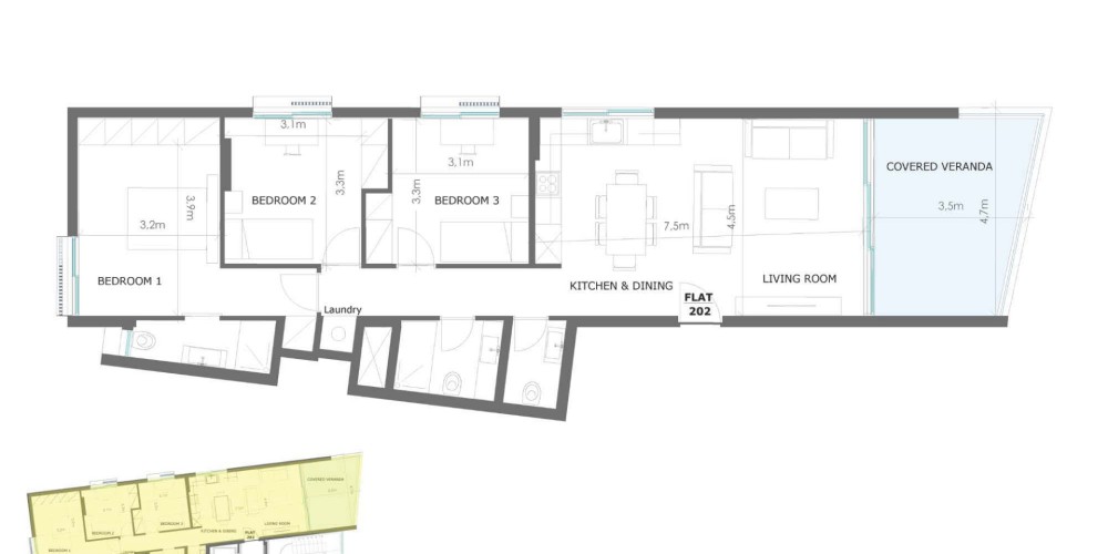
This three-story residential development is situated on Pernera Hill, offering a quiet setting with expansive views and convenient access to key city amenities. The building consists of six apartments—each floor includes one three-bedroom and one two-bedroom unit. Its location near The English School and an adjacent park provides both privacy and proximity to green space, making it suitable for families and professionals alike.
The architecture follows a minimalist concept, featuring two symmetrical exposed concrete volumes that highlight both function and aesthetic clarity. Each section ensures privacy while integrating shared and support areas to improve daily living. The use of exposed concrete and strategic façade openings with metal accents supports natural ventilation and daylight, contributing to long-term durability and efficiency.
Apartments feature contemporary layouts with floor-to-ceiling windows, optimizing the flow of natural light. Each space is designed to meet practical needs while maintaining visual harmony. High-quality finishes are present throughout, including modern flooring, cabinetry, and lighting.
Bathrooms are equipped with sanitary ware from top European manufacturers, offering a balance between durability and visual consistency. The building’s design and material choices are frequently reviewed to maintain quality and reflect evolving standards.
Residents also have the option to customize finishes with guidance from a professional design team, making each apartment adaptable to personal taste and functional needs.
The main features of the project and the units:
- Located on Pernera Hill in a quiet residential area
- Three-story building with six apartments
- Each floor includes one three-bedroom and one two-bedroom apartment
- Walking distance to The English School and adjacent park
- Minimalist architectural design with exposed concrete and metal accents
- Floor-to-ceiling windows for natural light
- High-quality finishes throughout
- Sanitary fittings from European manufacturers
- Customizable interior options with design support
- Easy access to city amenities and transportation routes
The project has an EPC certificate with “A” energy efficiency rating.














