O38 - Contemporary villas in Strovolos area, Nicosia
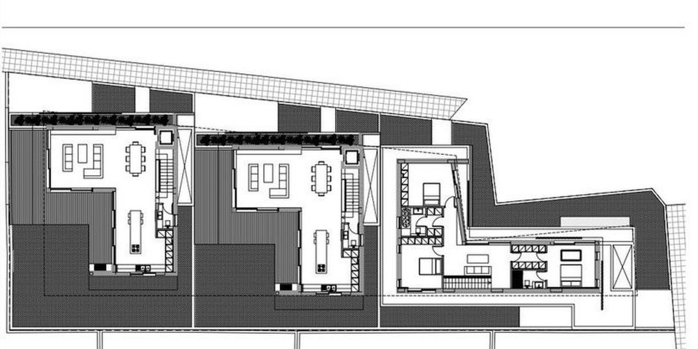
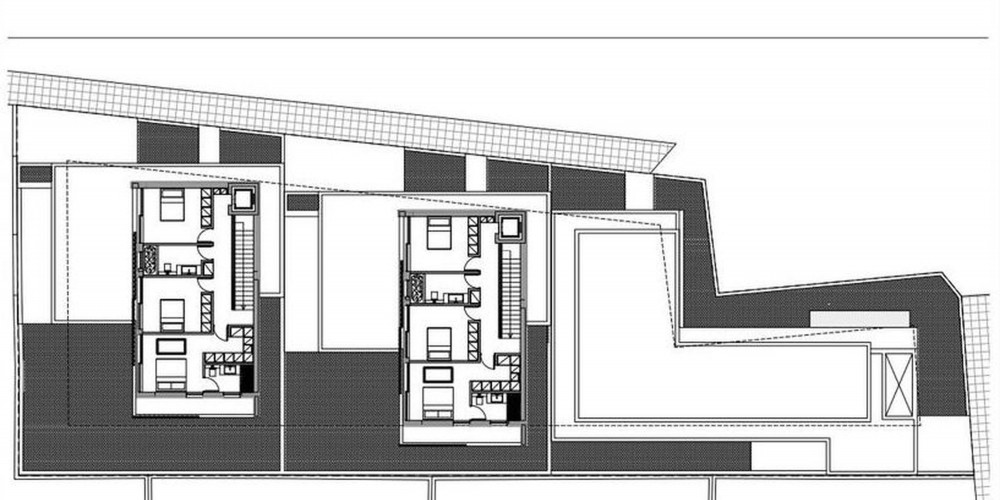
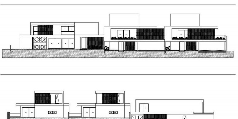
The plot’s particularity and the surrounding area was of key importance for every design decision regarding these houses. The first two houses were suited for a basement level that would occupy important space from the higher level and would impact less on the living conditions of the living spaces. This allowed for a maximum garden area. The main spaces are fragmented and later connected with circulation or secondary services, creating slots in the composition of the house, creating green layers deeper in the building while providing an uncommon way of enjoying the spaces. The third house is arranged with the same qualities but without the basement level. Taking into account the shape of the last part of the plot and the future possibility of having a garden extension, the last house was also implemented with a swimming pool. The design chosen for the buildings is identifying the harmony found in simple white forms with particular details like perforation, greenery and vertical elements which accents the balanced proportions of the houses.
The Project has EPC certificate with "A" Energy Efficiency Rating.
All units sold or reserved.















