P24 - Apartments in Paphos center, in 550 meters to the beach
Property status:
Project delivered
Location:
Cyprus, Paphos, Kato Paphos district
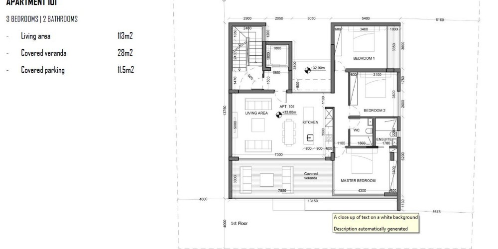
Situated in the heart of Kato Paphos, it is a new development consisting of only four 3-bedroom apartments, with a living area of 114 sqm.
Inside are sumptuous, contemporary apartments, which have been designed with the utmost attention to detail. The individually designed kitchens contain a full range of appliances, seamlessly integrated int...
Situated in the heart of Kato Paphos, it is a new development consisting of only four 3-bedroom apartments, with a living area of 114 sqm.
Inside are sumptuous, contemporary apartments, which have been designed with the utmost attention to detail. The individually designed kitchens contain a full range of appliances, seamlessly integrated into bespoke layouts. In the bathrooms and en-suites, additions like heated feature walls are combined with elegant European ceramic tiles and walls, creating oases of calm and the perfect ambience for relaxing.
The Project has EPC certificate with "A" Energy Efficiency Rating.
Area & Prices
All units sold or reserved.
Sold & Reserved Properties
101
- Apartment
Beds:
3
Area:
141 m2
Sold
201
- Apartment
Beds:
3
Area:
141 m2
Sold
301
- Apartment
Beds:
3
Area:
141 m2
Sold
401
- Penthouse
Beds:
3
Area:
141 m2
Sold
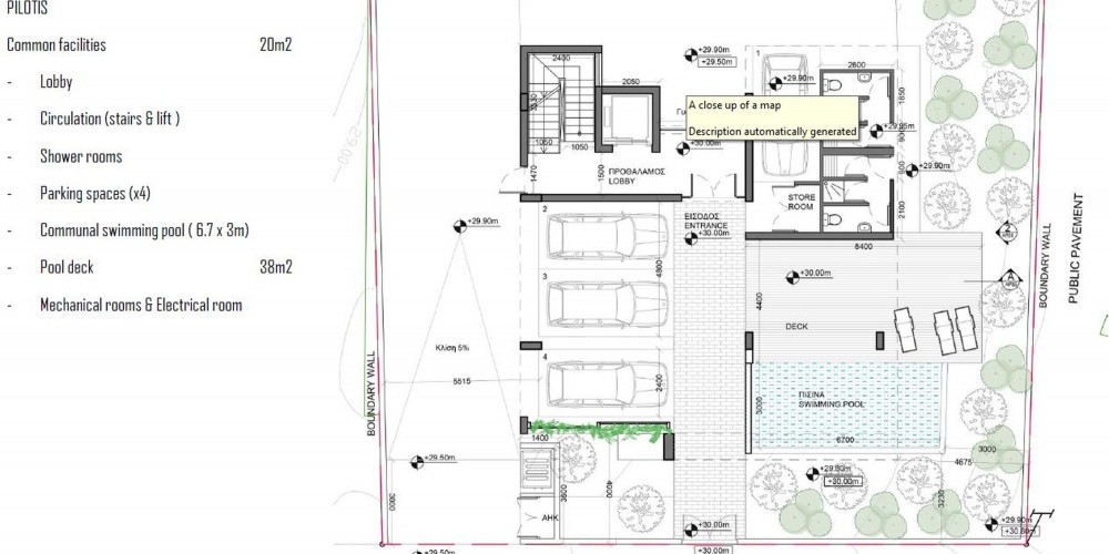
Map Location
Site Map & Floor Plans








