S121 - Apartments in the central location of Larnaca
Property status:
Delivery - May 2026
Location:
Cyprus, Larnaca city center
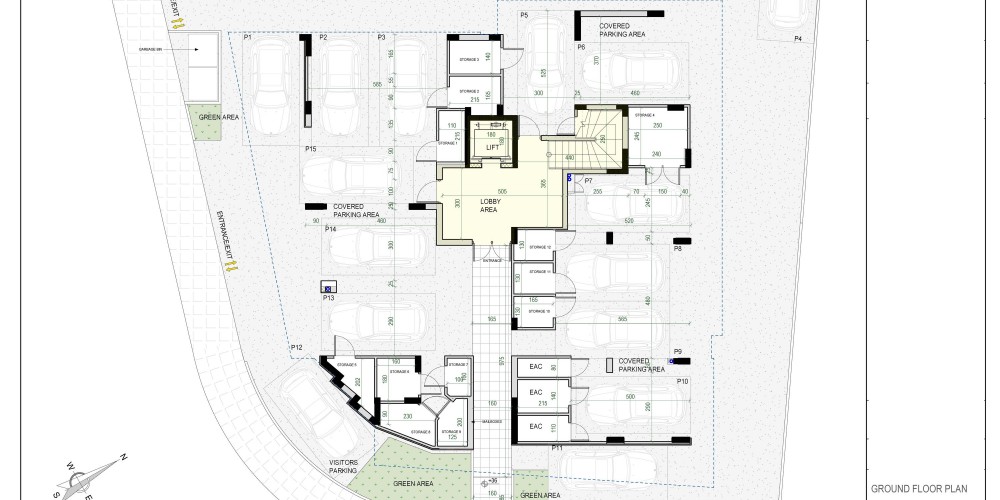
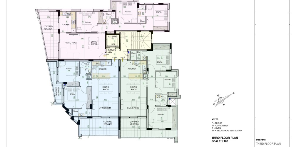
The project is located in the center of Larnaca, in walking distance to all amenities. The building will consist of 2, 3 and 4 bedroom apartments. The top apartments will have roof garden terraces. Each apartment will have an allocated storage room and the parking space.
The Project has EPC certificate with "B" Energy Efficiency Rating.
Area & Prices
401
- Apartment
Beds:
4
Area:
163 m2
€ 530,000 + VAT
Inside Area:
121 m2
Covered Veranda:
12 m2
Uncovered Veranda:
30 m2
Price per sq.m:
€ 3,252
Storage Room:
Yes
Additional Information
×
402
- Apartment
Beds:
4
Area:
174 m2
€ 510,000 + VAT
Inside Area:
112 m2
Covered Veranda:
17 m2
Uncovered Veranda:
45 m2
Price per sq.m:
€ 2,931
Storage Room:
Yes
Additional Information
×
Sold & Reserved Properties
101
- Apartment
Beds:
2
Area:
102 m2
Sold
102
- Apartment
Beds:
2
Area:
98 m2
Sold
103
- Apartment
Beds:
3
Area:
109 m2
Reserved
201
- Apartment
Beds:
2
Area:
102 m2
Reserved
202
- Apartment
Beds:
2
Area:
98 m2
Sold
203
- Apartment
Beds:
3
Area:
109 m2
Sold
301
- Apartment
Beds:
3
Area:
113 m2
Sold
302
- Apartment
Beds:
2
Area:
98 m2
Sold
303
- Apartment
Beds:
3
Area:
109 m2
Sold
403
- Apartment
Beds:
4
Area:
165 m2
Reserved
Map Location
Site Map & Floor Plans













