A0191 - 17 изысканных вилл и 19 современных апартаментов в районе Эмба, Пафос
The project has an EPC certificate with “B” energy efficiency rating.
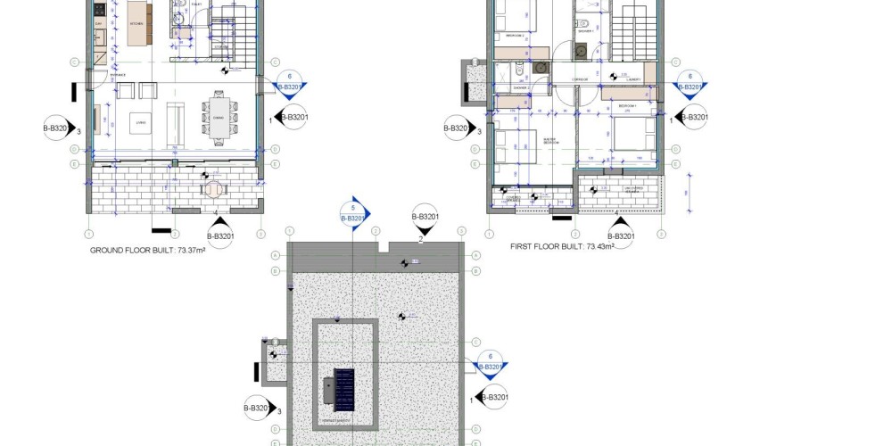
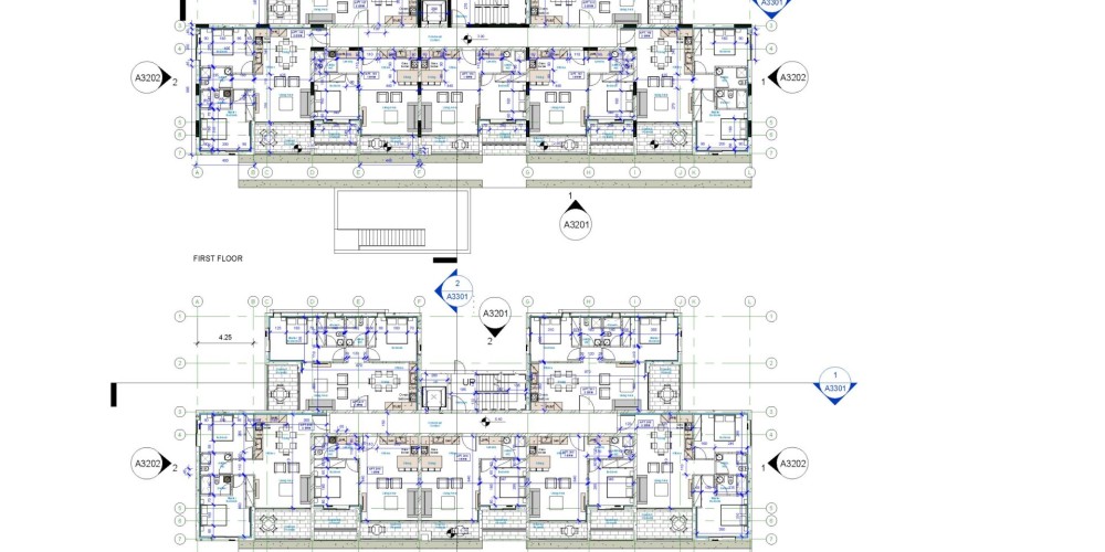
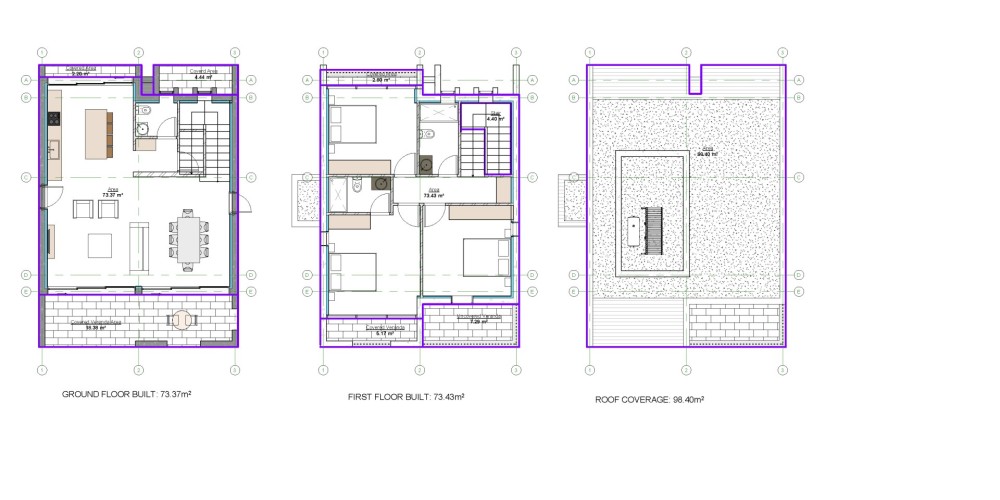
Откройте для себя великолепный новый жилой проект в живописной деревне Эмба, где современный дизайн гармонично сочетается с спокойной атмосферой. Этот тщательно спланированный комплекс включает 17 роскошных вилл и 19 стильных апартаментов, предлагая идеальный баланс между тишиной и доступностью. Расположенный всего в нескольких минутах от центра Пафоса, проект обеспечивает удобство близости к необходимым объектам инфраструктуры и уединение загородной жизни.
Апартаменты идеально подходят для молодых профессионалов или пар, предоставляя элегантные и функциональные пространства. Просторные виллы с несколькими спальнями и большими жилыми зонами идеально подойдут для семей, ищущих комфорт и приватность. Каждое жилье выполнено с использованием высококачественных отделочных материалов, современных технологий и с учетом максимального использования естественного света, создавая уютную и современную атмосферу.
Основные характеристики проекта и объектов:
- Общий бассейн
- Лифт
- Закрытая территория (охраняемая зона)
- Тренажёрный зал
- Благоустроенные сады
- Бар у бассейна
- Частная парковка
- Частный бассейн
- Сауна
Проект сертифицирован по классу энергоэффективности «B».



































