S613 - 3-х спальная вилла в одном из самых больших поселков Пафоса, Эмба
Статус недвижимости:
Завершение строительства - 12 месяцев после подписания контракта
Расположение:
Кипр, Пафос, Эмба (северный пригород Пафоса)
Эта вилла в современном стиле расположена в деревне Эмба (Пафос), в тихом жилом районе. Проект находится всего в 5 минутах езды от пляжей, в 10 минутах от центра города и торгового центра.
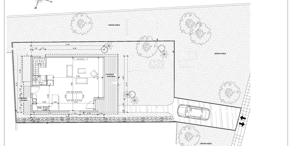
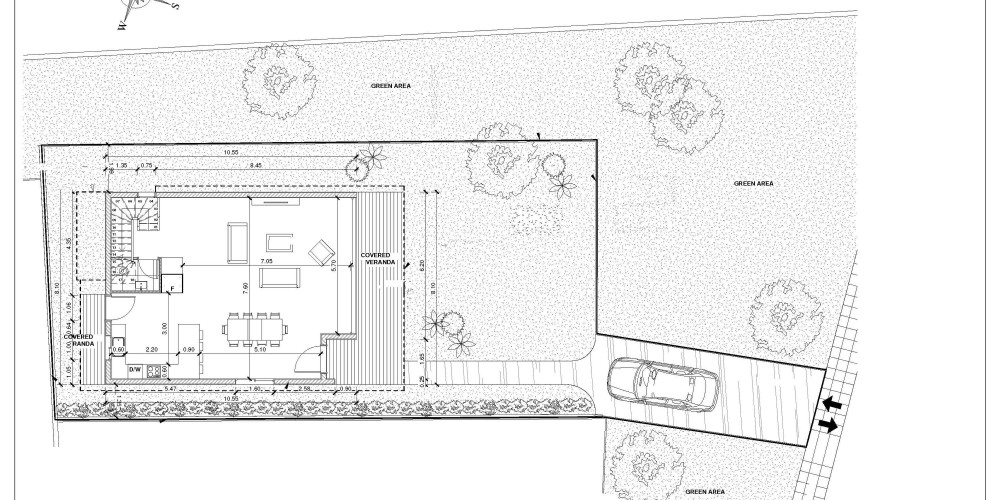
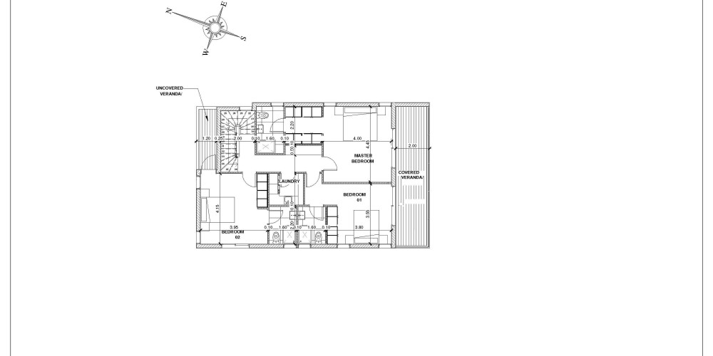
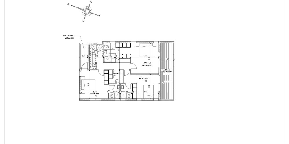
Вилла будет состоять из 3 спален, 3 ванных комнат и гостевого туалета. Владельцам виллы понравится светлая и просторная гостиная и кухня.
За дополнитель...
Эта вилла в современном стиле расположена в деревне Эмба (Пафос), в тихом жилом районе. Проект находится всего в 5 минутах езды от пляжей, в 10 минутах от центра города и торгового центра.
Вилла будет состоять из 3 спален, 3 ванных комнат и гостевого туалета. Владельцам виллы понравится светлая и просторная гостиная и кухня.
За дополнительную плату можно установить пол с подогревом, скрытую систему кондиционирования VRV, частный бассейн или 4-ую спальню на крыше.
Проект имеет сертификат энергоэффективности Class "A".
Площади и Цены
1
- Вилла
Спальни:
3
Площадь:
220 m2
Участок:
570 m2
€ 490,000 + НДС
Внутренняя Площадь:
187 m2
Открытая веранда:
33 m2
Цена за кв.м:
€ 2,227
Дополнительная информация
×
Расположение на карте
Схемы и планы












