B194 - 2-х спальная квартира на первом этаже с частным двориком в районе Героскипу, Пафос
2-х спальная квартира на первом этаже с частным двориком в районе Героскипу, Пафос
Квартира расположена на первом этаже жилого комплекса в районе Героскипу, на окраине Пафоса. Удобное местоположение обеспечивает быстрый доступ к школам, медицинским учреждениям, полям для гольфа и другим повседневным сервисам. Международный аэропорт Пафоса находится всего в нескольких минутах езды, что делает эту недвижимость подходящей как для постоянного проживания, так и для отдыха.
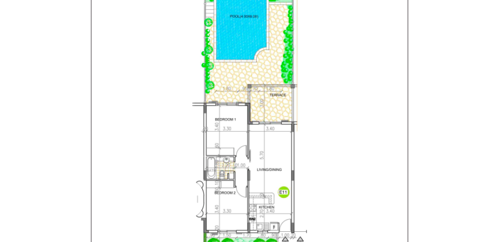
Планировка включает открытую гостиную с обеденной зоной, кухню, две спальни и одну ванную комнату. Внешнее пространство представлено крытой верандой, открытой верандой и частным двориком, что обеспечивает комфорт как внутри, так и снаружи. Во всех помещениях установлены кондиционеры.
Жителям комплекса доступны общие удобства: просторные бассейны, ресторан, бар и мини-маркет — всё на территории проекта.
Основные характеристики проекта и объектов:
- Расположение: Героскипу, Пафос
- 2 спальни, 1 ванная комната
- Открытая гостиная и обеденная зона
- Кухня
- Крытая внутренняя площадь: 67,70 м²
- Крытая веранда: 10,50 м²
- Общая крытая площадь: 83,15 м²
- Открытая веранда: 30,00 м²
- Частный дворик
- Площадь общего пользования: 4,65 м²
- Просторные общие бассейны
- Ресторан, бар и мини-маркет на территории
- Полностью меблирована
- Кондиционеры во всех помещениях
- Удобный доступ к школам, медицинским учреждениям, полям для гольфа, повседневным сервисам и аэропорту
Сертификат энергоэффективности категории «B»









