M45 - 5-и спальная вилла с видами на море в районе Месовунья, Лимассол
Статус недвижимости:
Строительство завершено
Расположение:
Кипр, Лимассол, Калогири (восточная часть Лимассола)
Эта современная вилла расположена в районе Мессовунья - Калогири. Вилла имеет легкий доступ к шоссе, ведущему к центру города. Из виллы открываются виды на море и окрестности.
Площади и Цены
Юниты проданы либо зарезервированы.
Продано & Зарезервировано
1
- Вилла
Спальни:
5
Площадь:
600 m2
Продано
Расположение на карте
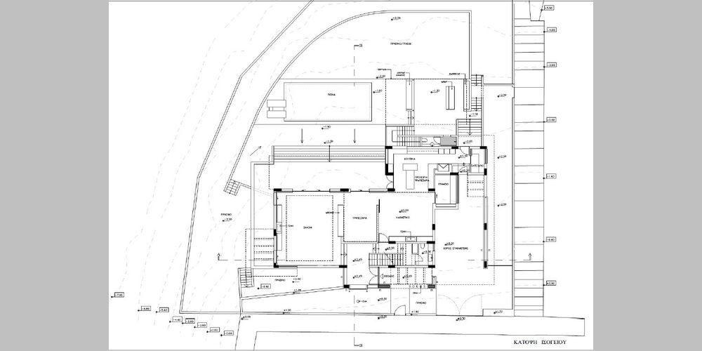
Схемы и планы
















