O84 - Элитная 6-ти спальная вилла в Лимассоле
Статус недвижимости:
Завершение строительства - Декабрь 2026г.
Расположение:
Кипр, Лимассол, Калогири (восточная часть Лимассола)
Элитная 6-ти спальная вилла в современном стиле, с переливным бассейном «Infinity pool». Расположена в престижном районе Лимассола, в живописном и уединенном месте. Состоит из 4-ех уровней: бейсмент, граунд флор (1 этаж), 2 этаж и крышная терраса (Roof Garden).
2 парковки на территории и гараж на 2 автомобиля, сад, место для отды...
Элитная 6-ти спальная вилла в современном стиле, с переливным бассейном «Infinity pool». Расположена в престижном районе Лимассола, в живописном и уединенном месте. Состоит из 4-ех уровней: бейсмент, граунд флор (1 этаж), 2 этаж и крышная терраса (Roof Garden).
2 парковки на территории и гараж на 2 автомобиля, сад, место для отдыха и барбекю. Откатные ворота, электронная система доступа, мраморная лестница, швейцарский лифт «Schindler», видеонаблюдение, сигнализация, система «Умный дом», теплые полы, дровяной камин и много других опций.
Проект имеет сертификат энергоэффективности Class "A".
Площади и Цены
1
- Вилла
Спальни:
6
Площадь:
757 m2
Участок:
907 m2
€ 4,300,000 + НДС
Внутренняя Площадь:
514 m2
Крытая веранда:
46 m2
Открытая веранда:
197 m2
Цена за кв.м:
€ 5,680
Этажи:
4
Парковка:
4
Бассейн:
собственный
Дополнительная информация
×
Расположение на карте
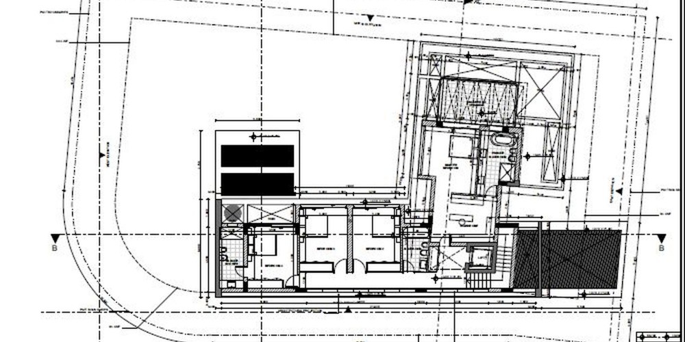
Схемы и планы








