Q47 - Вилла с панорамными видами в Кония, Пафос
Проект состоит из 8 отдельно стоящих двухэтажных вилл с тремя и четырьмя спальнями, 7 из которых уже построены и проданы.
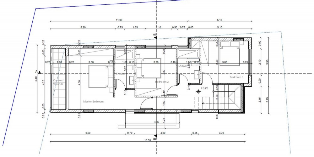
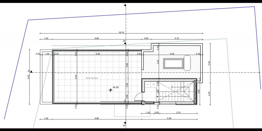
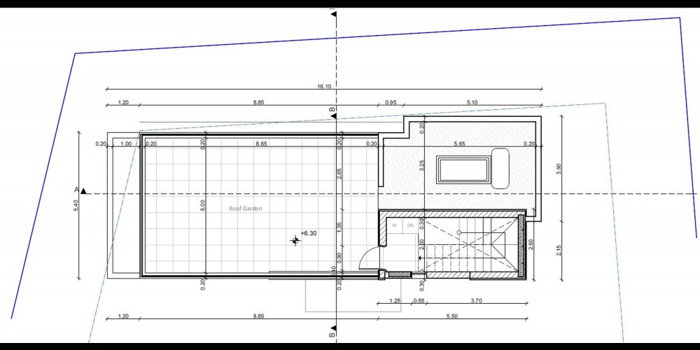
Современная вилла с 3 спальнями и 3 ванными комнатами, готовая под ключ, с видом на местности и море, будет оборудована частным бассейном (по желанию), зоной отдыха, огромной открытой террасой на крыше, садом, не требующим особого ухода, с автоматической системой полива, частной парковкой для 2 машин.
Комплекс расположен в престижном жилом районе Кония, всего в 5 минутах езды от Пафоса, рядом с местными и частными больницами. Также рядом находится частная международная школа Пафоса, имеющая отличную репутацию.
На начальном этапе строительства покупатель сможет выбрать плитку, кухонные шкафы и другую фурнитуру по своему вкусу.
Особенности виллы:
- Полы с подогревом с помощью Hydrokit Box
- Скрытая система охлаждения VRF
- Сигнализация
- Энергосбережение
- Модернизированная серия термоалюминия
- Система водяного давления
- Настенные туалеты и душевые кабины
- Мраморные полы (кроме спален)
- Ламинированные полы в спальнях
Проект имеет сертификат энергоэффективности Class "B".
Юниты проданы либо зарезервированы.











