S985 - Две просторны виллы в пригороде Пафоса, Кониа
Статус недвижимости:
Завершение строительства - 14-16 месяцев с начала строительства
Расположение:
Кипр, Пафос, Кониа (восточный пригород Пафоса)
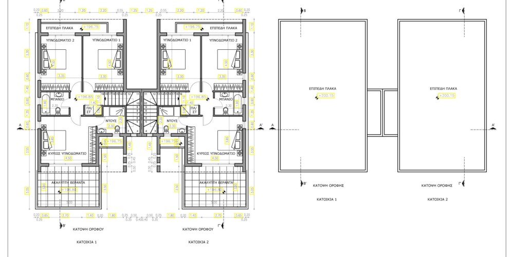
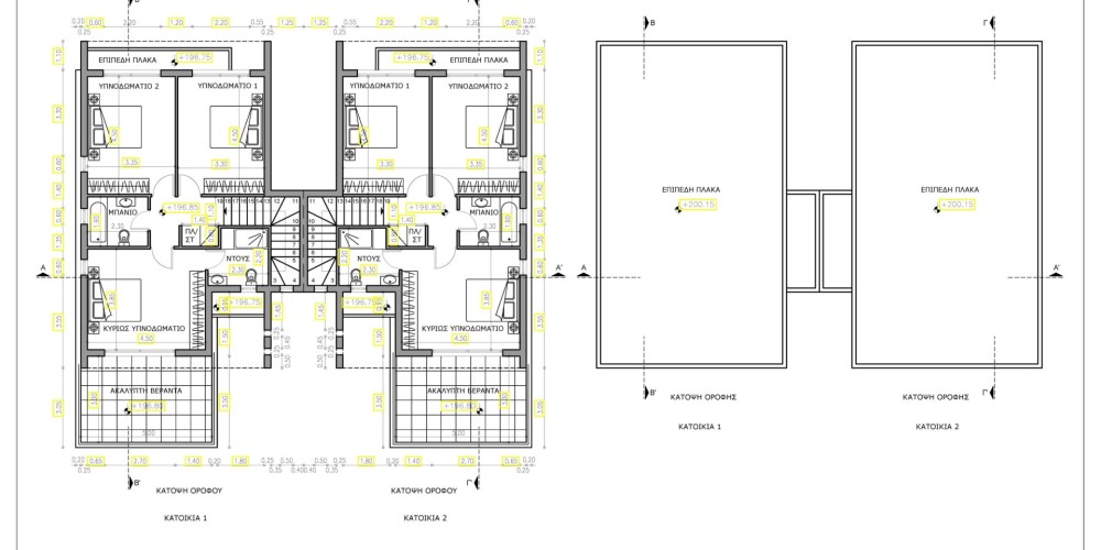
Новое жилое здание, расположеное в районе Кония, всего в нескольких минутах от города Пафос и всех основных удобств. Этот проект состоит из двух вилл.
Каждая вилла имеет три просторные спальни и крытые веранды.
Основные характеристики:
Возможность установки системы тёплого пола
Возможность установки сплит-системы к...
Новое жилое здание, расположеное в районе Кония, всего в нескольких минутах от города Пафос и всех основных удобств. Этот проект состоит из двух вилл.
Каждая вилла имеет три просторные спальни и крытые веранды.
Основные характеристики:
- Возможность установки системы тёплого пола
- Возможность установки сплит-системы кондиционирования
- Возможность установки электрических ворот, сигнализации и камер видеонаблюдения
- Возможность установки фотогальванических панелей.
Проект имеет сертификат энергоэффективности Class "A".
Площади и Цены
1
- Вилла
Спальни:
3
Площадь:
179 m2
Участок:
282 m2
€ 415,000 + НДС
Внутренняя Площадь:
152 m2
Крытая веранда:
27 m2
Цена за кв.м:
€ 2,318
Парковка:
2
Дополнительная информация
×
2
- Вилла
Спальни:
3
Площадь:
179 m2
Участок:
295 m2
€ 420,000 + НДС
Внутренняя Площадь:
152 m2
Крытая веранда:
27 m2
Цена за кв.м:
€ 2,346
Парковка:
2
Бассейн:
опционально
Дополнительная информация
×
Расположение на карте
Схемы и планы
Погода
26
Октября
2025










