S245 - Квартиры с видами на море в Пафосе, пригород Кониа
Это жилое здание предлагает выбор квартир и пентхауса. Акцент сделан на современном дизайне и планировке с открытым пространством.
Расположение в тихом и хорошо развитом районе Кония, является одной из его ключевых особенностей. Близкое расположение к шоссе и центру Пафоса, и одновременно возможность насладится спокойствием окружающей среды.
Здание находится по близости к городу, побережью, аэропорту и известной международной школе в Пафосе (International school). Сама деревня предоставляет множество удобств, включая таверны, банк, пекарню, начальную и детскую школы, минимаркет и две церкви.
Эти квартиры и пентхаус не только идеальны для долгосрочных инвестиций, но также являются идеальным выбором для тех, кто стремится получить Постоянное Резидентство на Кипре.
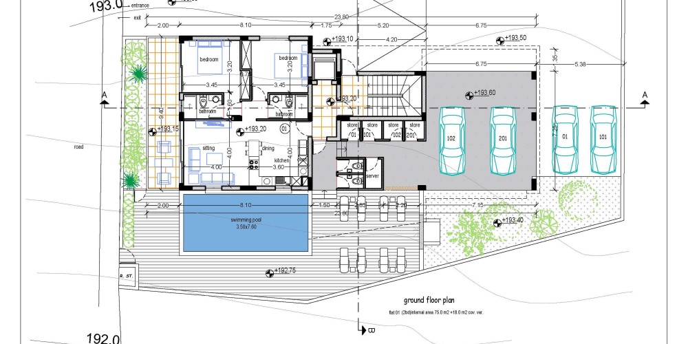
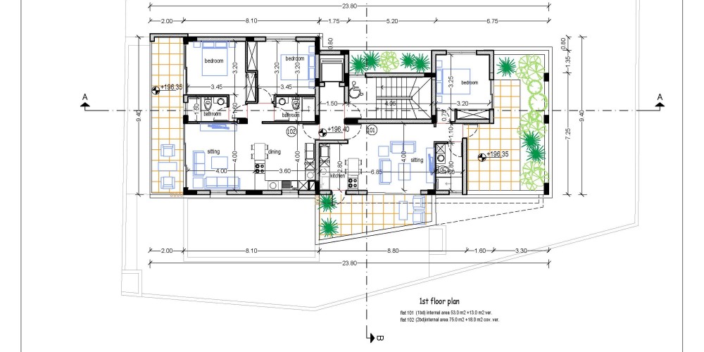
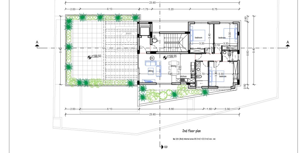
Другие особенности проекта:
- Мраморный / Керамогранитный пол
- Сантехника GROHE
- Парковка
- Бассейн
- Система кондиционирования воздуха VRV
- Видео домофон
- Электрические ворота с дистанционным управлением
- Система “Умный дом”
Проект имеет сертификат энергоэффективности Class "A".
Юниты проданы либо зарезервированы.









