S122 - Вилла в тихом месте с изумительным морским пейзажем в Пейи, недалеко от Пафоса.
Статус недвижимости:
Строительство завершено
Расположение:
Кипр, Пафос, Пейя (курортное место к северу от Пафоса, расположенное на возвышенности с красивыми видами)





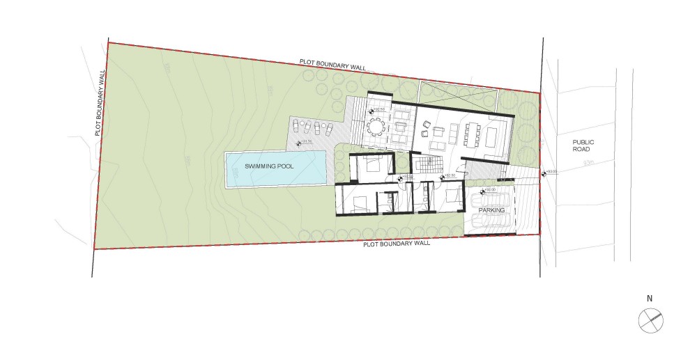
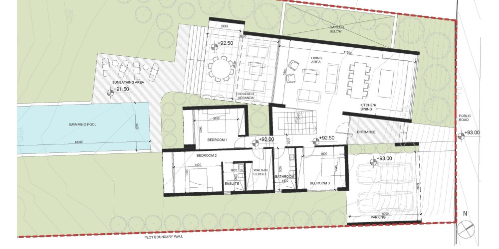
Эта вилла расположена в районе морских пещер в Пафосе. Повышенное положение этой виллы обеспечивает беспрепятственный вид на море. Вилла имеет 2 уровня жилой площади и сад на крыше, парковку, а у бассейна открываются захватывающие виды.
Другие особенности проекта:
Просторная гостиная, столовая и кухня
3 спальни
Г...
Эта вилла расположена в районе морских пещер в Пафосе. Повышенное положение этой виллы обеспечивает беспрепятственный вид на море. Вилла имеет 2 уровня жилой площади и сад на крыше, парковку, а у бассейна открываются захватывающие виды.
Другие особенности проекта:
- Просторная гостиная, столовая и кухня
- 3 спальни
- Главная спальня с гардеробной
- Прачечная/ кладовая
- Парковка для 2 машин
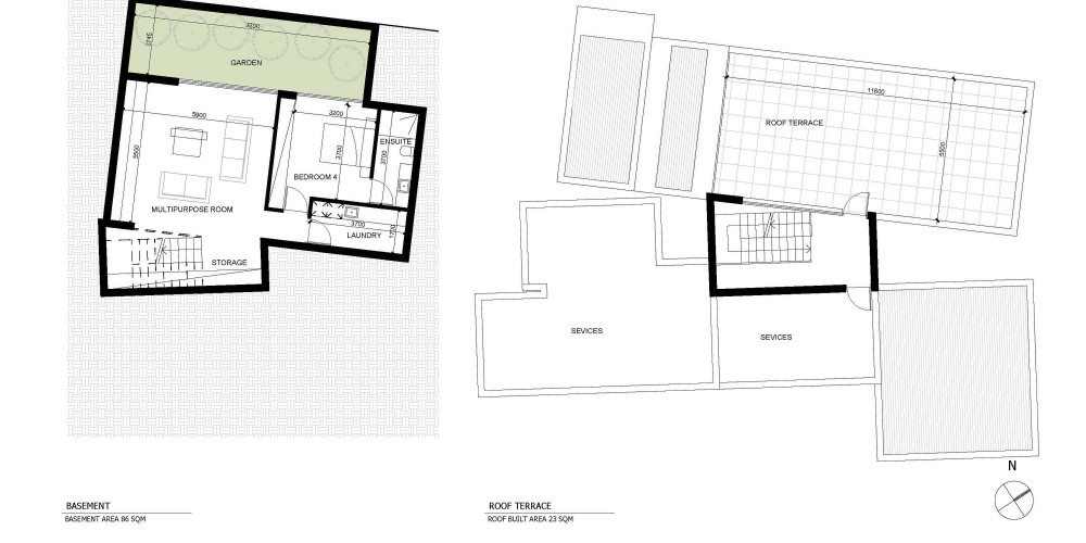
- Сад на крыше
- Барбекю на уровне кухни
- Бассейн
- Джакузи на террасе на крыше
- Камин
- Высокие потолки
В цену входит бассейн, подогрев полов, VRV для охлаждения, сигнализация, электромобиль-зарядное устройство, электрические ворота для входа. Есть также возможность построить подвал 86 м2 с другой спальней и многоцелевой комнатой.
Проект имеет сертификат энергоэффективности Class "B".
Площади и Цены
Юниты проданы либо зарезервированы.
Продано & Зарезервировано
1
- Вилла
Спальни:
3
Площадь:
307 m2
Зарезервировано
Расположение на карте
Похожие объекты
F95 - Трехуровневые виллы в Пейе, к северу от Пафоса, с панорамными видами на западное побережье Кипра
I08 - Виллы в пригороде Пафоса (Пейя), в пешей доступности до Кораллового Залива - вторичная недвижимость
S609 - Современная и просторная 5-ти спальная вилла на первой линии моря в районе Sea Caves в Пафосе
S666 - Вилла в окружении исключительной природной красоты с одним из лучших песчаных пляжей на Кипре (Пейя, Пафос)
Погода
13
Декабря
2025
Рим
Light rain showers
16 °C
Лимассол
Cloudy
-1 °C
Лондон
Rain
9 °C
Заголовок
X



