S476 - Вилла с 4 спальнями и панорамным видом на море в Пейя, Пафос
Статус недвижимости:
Строительство завершено
Расположение:
Кипр, Пафос, Пейя (курортное место к северу от Пафоса, расположенное на возвышенности с красивыми видами)










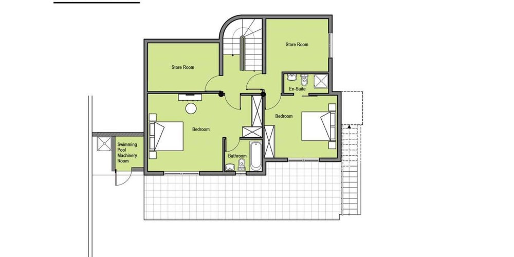
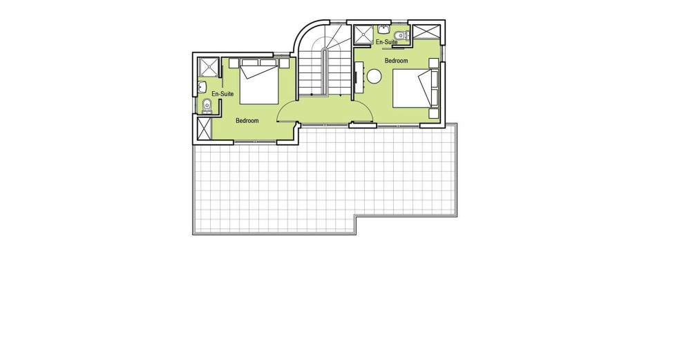
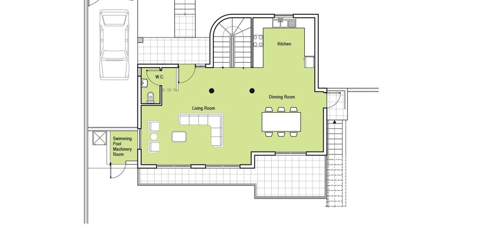
Эта вилла с 4 спальнями, спроектированная так, чтобы в полной мере насладиться великолепным видом на море и горы, плюс 2 дополнительные комнаты могут быть добавлены в соответствии с выбранными вами внутренними стандартами. Этот дом с мраморной лестницей, кухней в итальянском стиле, просторными балконами и большим собственным пейзажным бассейном предлагает...
Эта вилла с 4 спальнями, спроектированная так, чтобы в полной мере насладиться великолепным видом на море и горы, плюс 2 дополнительные комнаты могут быть добавлены в соответствии с выбранными вами внутренними стандартами. Этот дом с мраморной лестницей, кухней в итальянском стиле, просторными балконами и большим собственным пейзажным бассейном предлагает лучший образ жизни.
Вилла расположена в тихом жилом районе Куль-де-Сак с видом на традиционную деревню Пейя, рядом с широким спектром удобств и всего в 5 минутах от песчаных пляжей Кораллового залива, отмеченных голубым флагом, а также города Пафоса и древней гавани в 15 минутах по прибрежной дороге.
Проект имеет сертификат энергоэффективности Class "B".
Площади и Цены
14
- Вилла
Спальни:
4
Площадь:
308 m2
Участок:
593 m2
€ 655,000 НДС нет
Внутренняя Площадь:
211 m2
Крытая веранда:
24 m2
Открытая веранда:
73 m2
Цена за кв.м:
€ 2,127
Парковка:
2
Бассейн:
собственный
Дополнительная информация
Сад
×
Расположение на карте
Похожие объекты
F95 - Трехуровневые виллы в Пейе, к северу от Пафоса, с панорамными видами на западное побережье Кипра
I08 - Виллы в пригороде Пафоса (Пейя), в пешей доступности до Кораллового Залива - вторичная недвижимость
S609 - Современная и просторная 5-ти спальная вилла на первой линии моря в районе Sea Caves в Пафосе
S666 - Вилла в окружении исключительной природной красоты с одним из лучших песчаных пляжей на Кипре (Пейя, Пафос)
Погода
28
Октября
2025
Рим
Light rain showers
16 °C
Лимассол
Cloudy
-1 °C
Лондон
Rain
9 °C
Заголовок
X




