S322 - Вилла недалеко от Морских пещер в окрестностях Пафоса
Статус недвижимости:
Строительство завершено
Расположение:
Кипр, Пафос
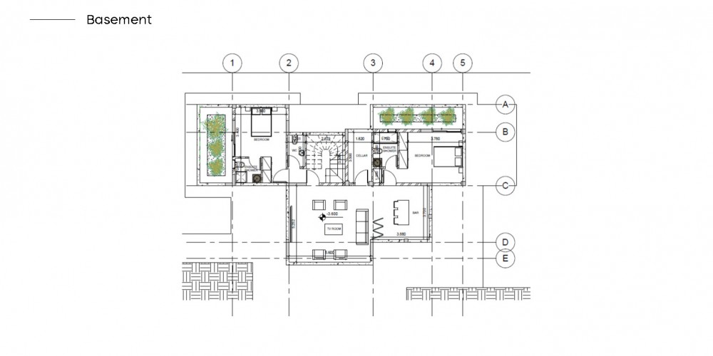
Уникальный проект с 6 спальнями расположен на западном побережье Пафоса в потрясающем районе Sea Caves. Эта современная вилла с интегрированными технологиями "умного дома" была тщательно спроектирована, чтобы в полной мере использовать великолепные виды на море и величественные закаты. Проект включает в себя просторные жилые помещения, бассейн и сад.
...
Уникальный проект с 6 спальнями расположен на западном побережье Пафоса в потрясающем районе Sea Caves. Эта современная вилла с интегрированными технологиями "умного дома" была тщательно спроектирована, чтобы в полной мере использовать великолепные виды на море и величественные закаты. Проект включает в себя просторные жилые помещения, бассейн и сад.
Основные характеристики проекта и апартаментов:
- 300 кв. м крытой площади - участок 18,601 кв. м.
- Вилла с 6 спальнями
- 500 метров от моря
- Оснащена интеллектуальной техникой
- 20 минут ходьбы до Коралбая и знаменитого пляжа, отмеченного голубым флагом
- Бассейн и барбекю
- Ландшафтный сад с системой орошения
- Мини-гольф (по желанию)
- Теннисный корт (по желанию)
- Свободная собственность с документами на право собственности
Площади и Цены
Юниты проданы либо зарезервированы.
Продано & Зарезервировано
1
- Вилла
Спальни:
6
Площадь:
500 m2
Зарезервировано
Расположение на карте
Схемы и планы








