S575 - Элитные виллы с прекрасным видом в Пафосе (пешая доступность до морских пещер)
Статус недвижимости:
Строительство завершено
Расположение:
Кипр, Пафос
Изысканный комплекс, расположенный в районе Sea Caves в Пафосе.
Комплекс находится в 10 минутах ходьбы от захватывающего места кораблекрушения и морских пещер. Он также находится в 10 минутах езды от границы природного заповедника Акамас.
Каждая вилла в этом комплексе отличается плавным переходом между внутренним и внешним пространством и ...
Изысканный комплекс, расположенный в районе Sea Caves в Пафосе.
Комплекс находится в 10 минутах ходьбы от захватывающего места кораблекрушения и морских пещер. Он также находится в 10 минутах езды от границы природного заповедника Акамас.
Каждая вилла в этом комплексе отличается плавным переходом между внутренним и внешним пространством и высокими техническими характеристиками. Жители могут в полной мере насладиться климатом Кипра и природной красотой этого района, наслаждаясь обширным открытым пространством и захватывающими видами. Кроме того, имеется удобный доступ к местной инфраструктуре, включая школы, магазины, бары и отели.
Другие характеристики:
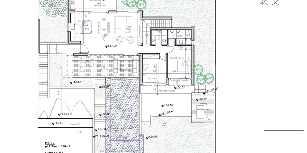
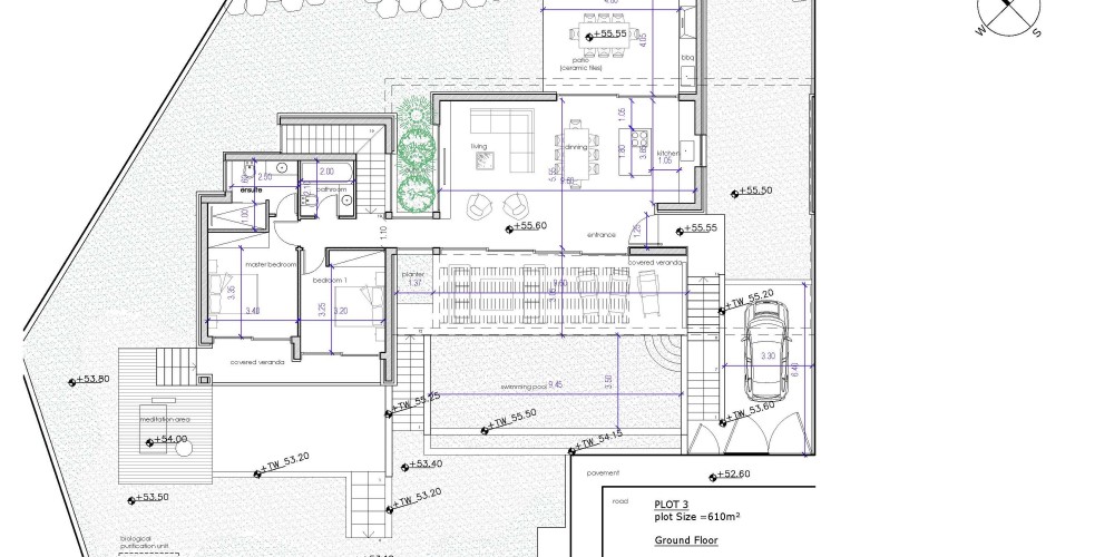
- Просторная гостиная, столовая и кухня открытой планировки
- Бассейн
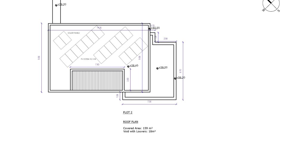
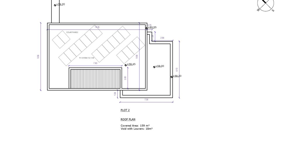
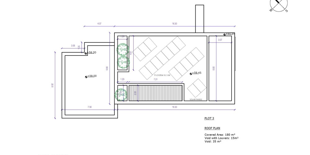
- фотогальваническая система 10,1 кВт с солнечными панелями
- Полы итальянского производства
- Зона барбекю с кухней
- Водяной подогрев пола с тепловым насосом
- Система охлаждения VRV, предлагающая настраиваемый климат-контроль во всех комнатах
- Высокие потолки во всех комнатах
- Электрические ворота для автомобилей и зарядное устройство для электромобилей
- Ванные комнаты оборудованы душевыми кабинами, безопасным стеклом и настенными туалетами
- Внешние ставни в спальнях для затенения
- Полная теплоизоляция
- Энергоэффективные тонкие алюминиевые окна
- Система безопасности с сигнализацией и видеонаблюдением
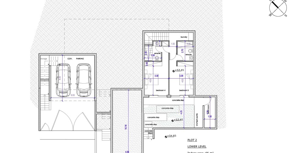
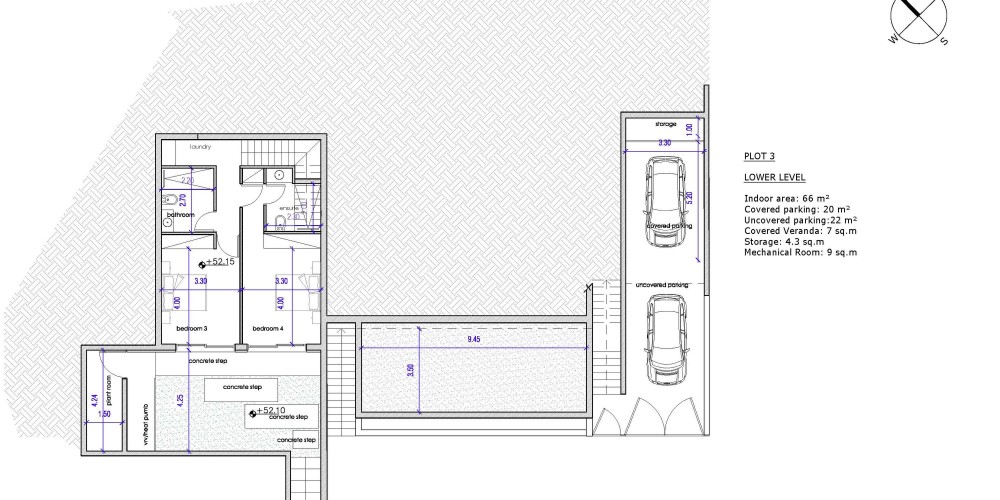
- Мастерская
Проект имеет сертификат энергоэффективности Class "A".
Площади и Цены
Юниты проданы либо зарезервированы.
Продано & Зарезервировано
1
- Вилла
Спальни:
4
Площадь:
279 m2
Зарезервировано
2
- Вилла
Спальни:
4
Площадь:
231 m2
Зарезервировано
3
- Вилла
Спальни:
4
Площадь:
235 m2
Зарезервировано
4
- Вилла
Спальни:
3
Площадь:
226 m2
Зарезервировано
Расположение на карте
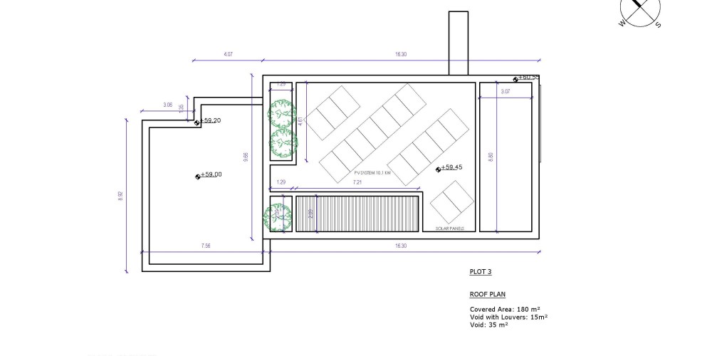
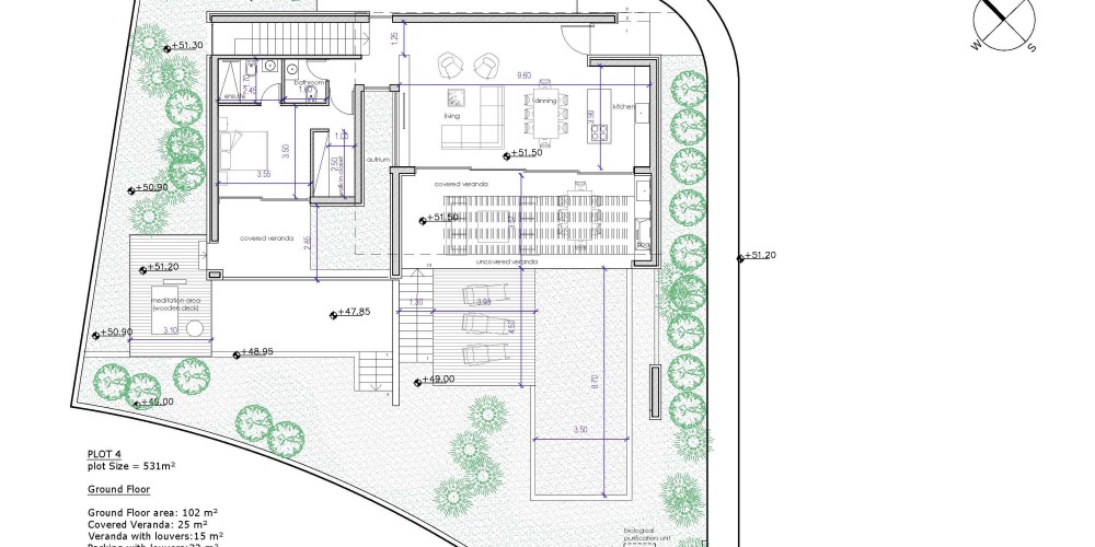
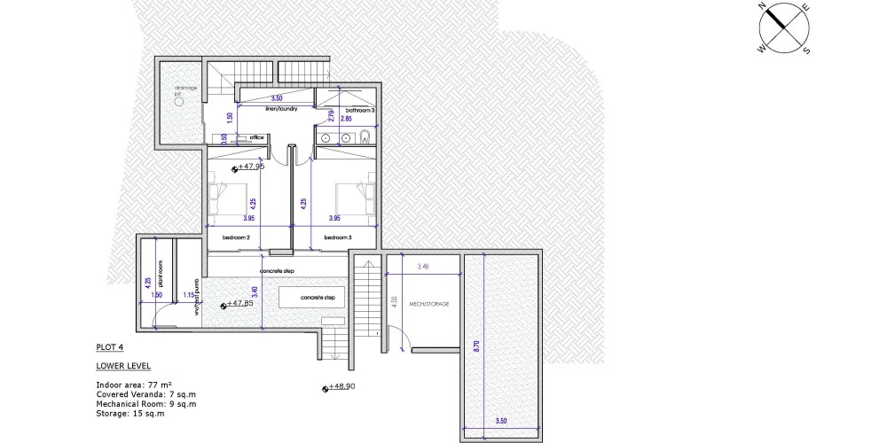
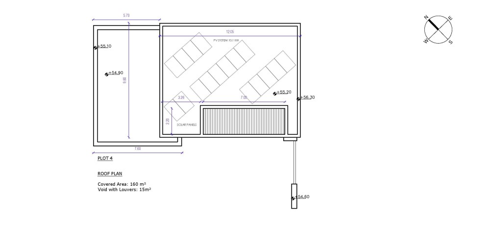
Схемы и планы















