O83 - Complex of villas in a residential area, Limassol
Property status:
Project delivered
Location:
Cyprus, Limassol, Ag. Athanasios (a district in the Northern part of Limassol)




It is a contemporary project, consisting of five villas and located in one of the most desirable residential areas of Agios Athanasios. The houses are ideal for city lifestyle in a nice tranquil environment surrounded by restaurants, shopping centers and schools. The idea behind the project is to introduce the affordable family living in the most popular ...
It is a contemporary project, consisting of five villas and located in one of the most desirable residential areas of Agios Athanasios. The houses are ideal for city lifestyle in a nice tranquil environment surrounded by restaurants, shopping centers and schools. The idea behind the project is to introduce the affordable family living in the most popular area of Limassol.
Project features:
- Reinforced concrete structure
- Thermal insulated houses
- Thermal double-glazed aluminium windows
- Photovoltaic system
- Electric Shutters
- Quality sanitary finishes
- Granite work tops
The Project has EPC certificate with "B" Energy Efficiency Rating
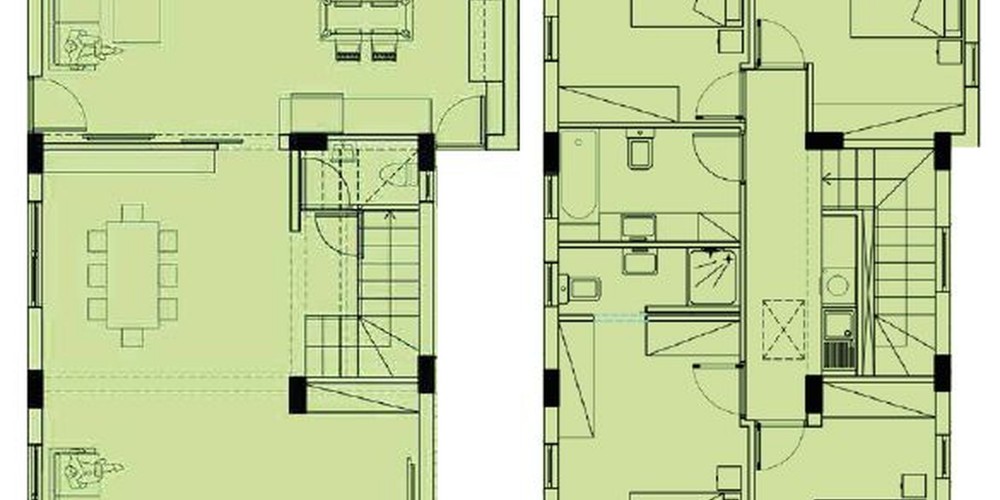
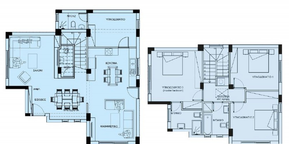
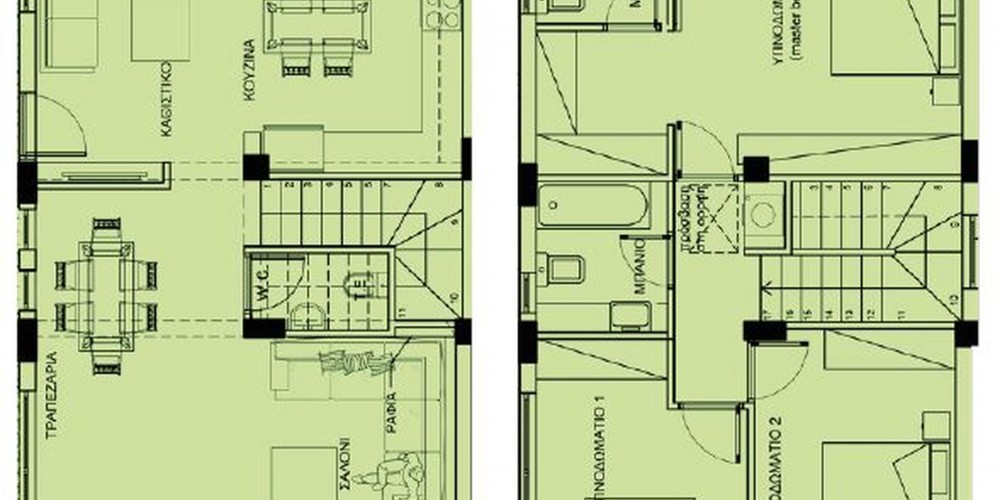
Area & Prices
All units sold or reserved.
Sold & Reserved Properties
1
- House
Beds:
3
Area:
182 m2
Sold
2
- House
Beds:
3
Area:
171 m2
Sold
3
- House
Beds:
3
Area:
171 m2
Sold
Map Location
Related Projects
S595 - A block of apartments, offering a blend of comfort, elegance and panoramic sea views in Agios Athanasios, Limassol
S627 - A three-floor residential building in a quiet neighborhood with easy access to the highway in Limassol
S678 - 1 and 2 bedroom flats with unobstructed sea and mountain views in a quiet residential area of Agios Athanasios, Limassol
S681 - Apartments, boasting beautiful views of the city, mountains and the sea, in Limassol area of Agios Athanasios
S801 - A residential building with a communal swimming pool, gym and playroom in Limassol (Agios Athanasios)
S828 - 1, 2 and 3 bedroom apartments as well as penthouses with their own private roof gardens in Agios Athanasios, Limassol
S887 - Modern residential development with a private pool, lush gardens and a fully equipped private gym in Agios Athanasios, Limassol
T035 - A residential development of refined apartments with penthouses featuring beautiful rooftop gardens in Limassol
T045 - A residential development in Agios Athanasios (Limassol), offering views of the city and the sea
B598 - Residential land with permits for two houses in Agios Athanasios Limassol with unobstructed sea views
B616 - 3-bedroom detached house in Agios Athanasios, Limassol with renovated interiors and flexible layout
T090 - Stylish 1-bedroom apartments and a 3-bedroom penthouse with a private roof garden in Limassol
T098 - A development of just three apartments, including a penthouse with private rooftop garden in Limassol
Заголовок
X




