P04 - Apartments in walking distance to the sea in Limassol
Property status:
Project delivered
Location:
Cyprus, Limassol (Potamos Germasogeias district)
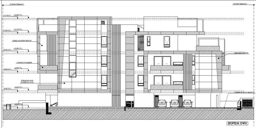
An elite low-rise block house in front of the famous Dasoudi eucalyptus park, within walking distance to the sea. The complex is located in a quiet, picturesque area, yet close to all the necessary urban facilities: there are stores, pharmacies, banks, bakeries, and supermarkets nearby.
Its residents are offered a large developed space, a swimming...
An elite low-rise block house in front of the famous Dasoudi eucalyptus park, within walking distance to the sea. The complex is located in a quiet, picturesque area, yet close to all the necessary urban facilities: there are stores, pharmacies, banks, bakeries, and supermarkets nearby.
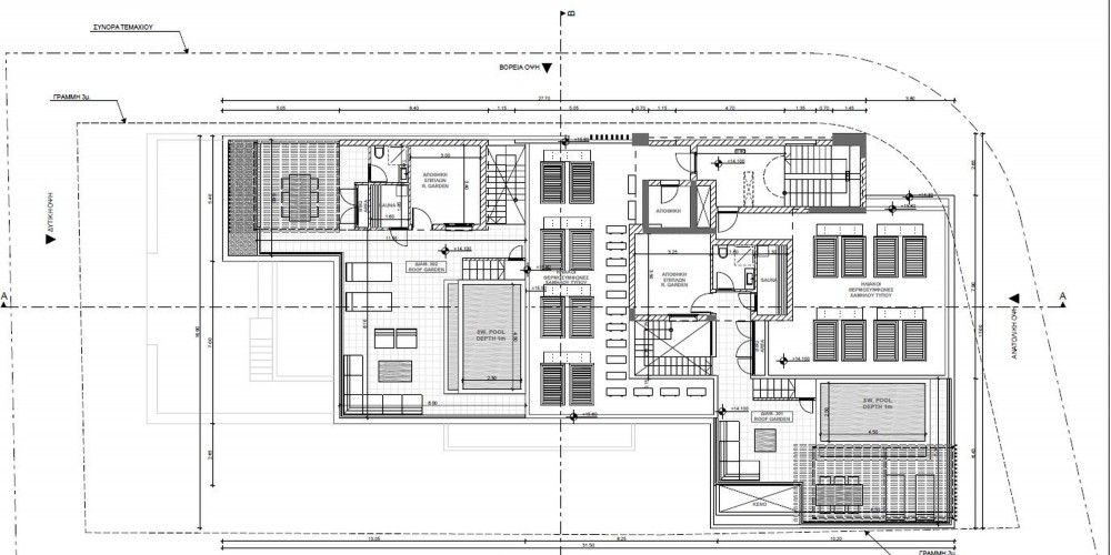
Its residents are offered a large developed space, a swimming pool, a relaxation area, a gym, private parking lots, storage rooms, and a guarded entrance with limited access.
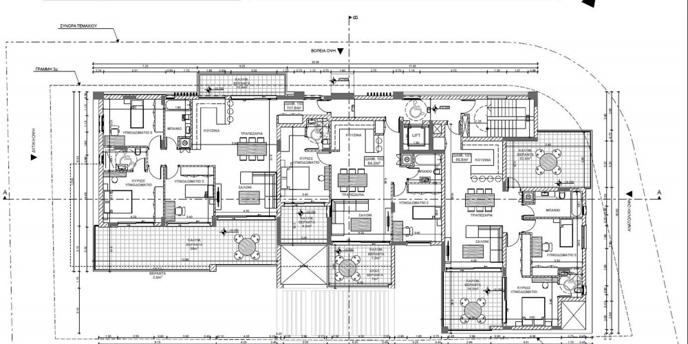
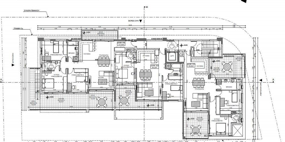
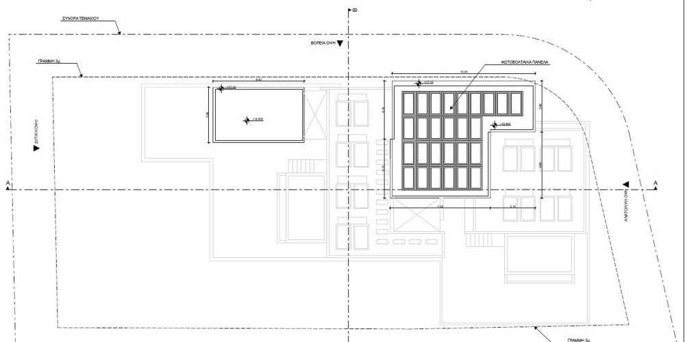
The complex consists of 5 comfortable 2- and 3-bedroom apartments and 3 luxurious 3-bedroom penthouses with private rooftop pools.
- Premium finishes
- Gated territory
- Walking distance to the sea
The Project has EPC certificate with "B" Energy Efficiency Rating.
Area & Prices
All units sold or reserved.
Sold & Reserved Properties
101
- Apartment
Beds:
2
Area:
138 m2
Sold
102
- Apartment
Beds:
2
Area:
108 m2
Sold
103
- Apartment
Beds:
3
Area:
170 m2
Sold
201
- Apartment
Beds:
2
Area:
138 m2
Sold
202
- Apartment
Beds:
2
Area:
113 m2
Sold
203
- Penthouse
Beds:
3
Area:
271 m2
Sold
301
- Penthouse
Beds:
3
Area:
208 m2
Sold
302
- Penthouse
Beds:
3
Area:
255 m2
Sold
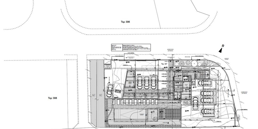
Map Location
Site Map & Floor Plans





















