P55 - Contemporary apartments in walking distance to the sea in Limassol
Innovative design and comfort are combined in this elegant 5 floor building that will give you a hard-to-find no-neighbour/1 apartment-per-floor luxury. Top specifications and an inspired concept give each floor its unique lay-out.
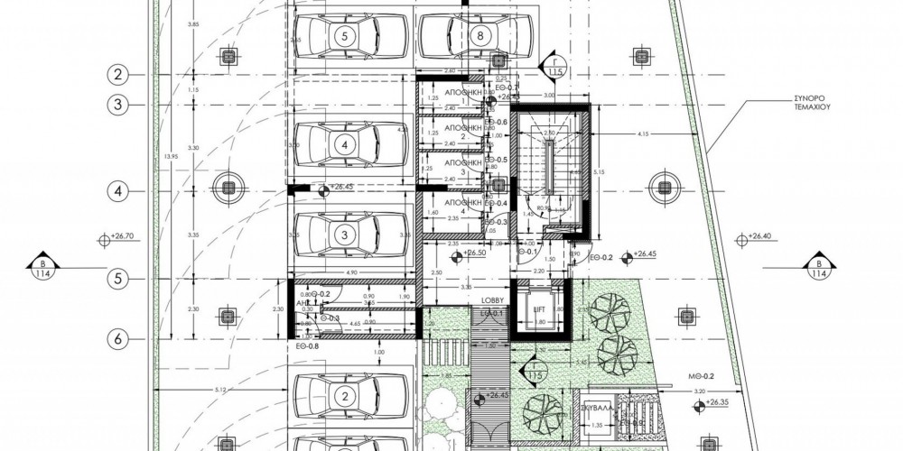
The interiors are modern but elegant. Each apartment offers an open floor plan. The floor to ceiling windows and sliding glass doors welcome in natural light , lovely views and the Mediterranean sea breeze. Two well appointed bedrooms with designer bathrooms, built-in closets and walk-in closet complement the concept. All the appliances are of the brand Bosch. Each floor has 2 parking lots and 1 storageroom.
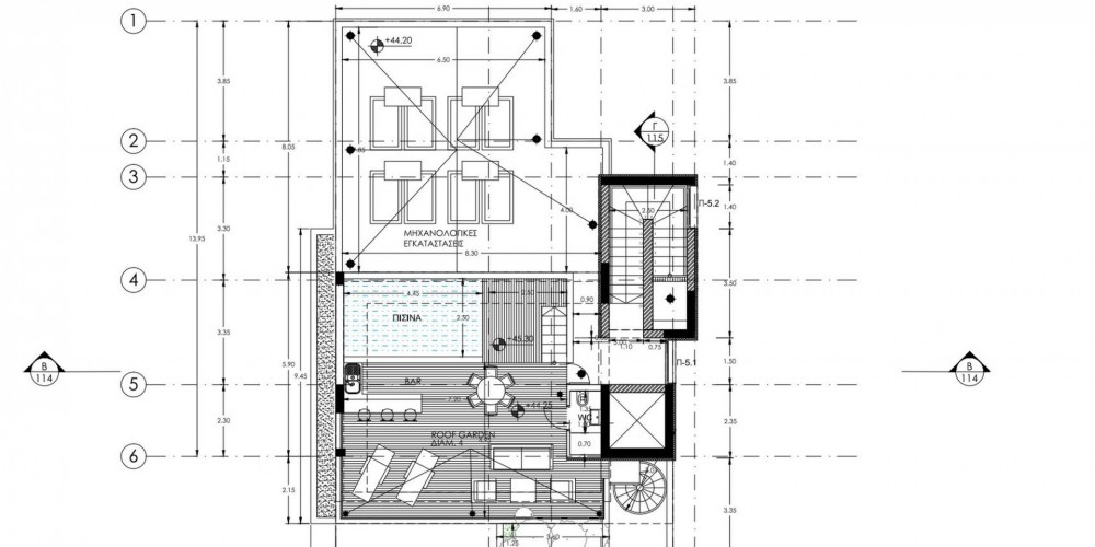
Floors 4 and 5 are dedicated to the penthouse with its private roof garden and pool. High quality finishes are to be seen in every detail, from the floors, throughout the plasterwork to the ceilings, as well as in high tech materials and luxury extras like security doors, smart automation systems for lights and curtains, lush outdoors and last but not least an exquisitely designed entrance to this stylish building.
The Project has EPC certificate with "B" Energy Efficiency Rating.
All units sold or reserved.



















