P61 - Apartments in the central area of Limassol
Property status:
Project delivered
Location:
Cyprus, Limassol, the center
A residential building with 8 apartments and a penthouse with a roof garden. Each apartments consists of 2 bedrooms and bathrooms, kitchen, the dinning and living room, laundry and front veranda. Each apartment will be assigned a parking place and a storage.
The Project has EPC certificate with "A" Energy Efficiency Rating.
Area & Prices
All units sold or reserved.
Sold & Reserved Properties
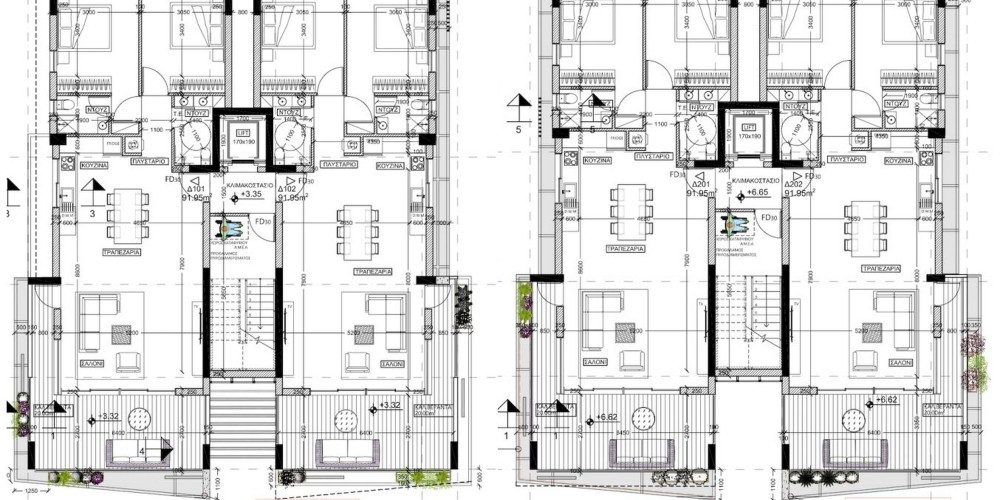
101
- Apartment
Beds:
2
Area:
112 m2
Sold
102
- Apartment
Beds:
2
Area:
112 m2
Sold
201
- Apartment
Beds:
2
Area:
112 m2
Sold
202
- Apartment
Beds:
2
Area:
112 m2
Sold
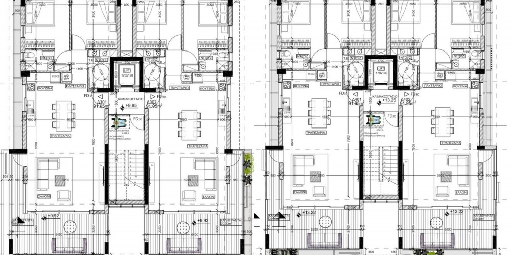
301
- Apartment
Beds:
2
Area:
112 m2
Sold
401
- Apartment
Beds:
2
Area:
112 m2
Sold
402
- Apartment
Beds:
2
Area:
112 m2
Sold
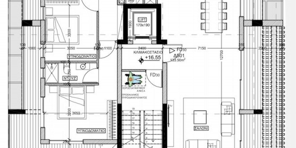
501
- Penthouse
Beds:
3
Area:
243 m2
Sold
Map Location
Site Map & Floor Plans







