S120 - Residential building in Limassol city center
Property status:
Project delivered
Location:
Cyprus, Limassol, the center
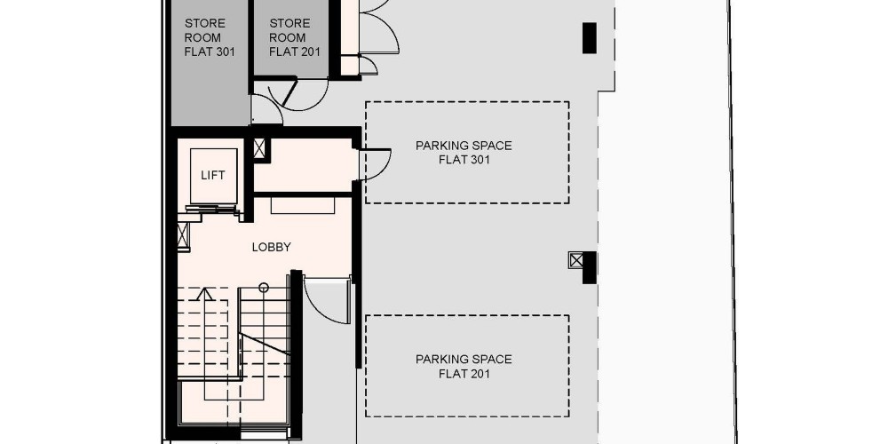
The building is designed to offer spacious functional apartments in the center of Limassol. The building will consist of 4 apartments. Each apartment will have its own parking space as well as its own storage room.
All apartments will have large balconies and will be equipped with smart systems.
The building will have photovoltaics for eac...
The building is designed to offer spacious functional apartments in the center of Limassol. The building will consist of 4 apartments. Each apartment will have its own parking space as well as its own storage room.
All apartments will have large balconies and will be equipped with smart systems.
The building will have photovoltaics for each apartment and the common areas of the building. The central entrance of the building will be controlled by a video doo entry system.
The Project has EPC certificate with "A" Energy Efficiency Rating.
Area & Prices
All units sold or reserved.
Sold & Reserved Properties
101
- Apartment
Beds:
1
Area:
69 m2
Reserved
102
- Apartment
Beds:
1
Area:
63 m2
Sold
201
- Apartment
Beds:
2
Area:
135 m2
Reserved
301
- Apartment
Beds:
2
Area:
172 m2
Sold
Map Location
Site Map & Floor Plans
Weather
21
November
2025










