R14 - Villas in Chlorakas, Paphos, in 1km to the sea
Property status:
Project delivered
Location:
Cyprus, Paphos, Chlorakas (nearest northern suburb of Paphos)





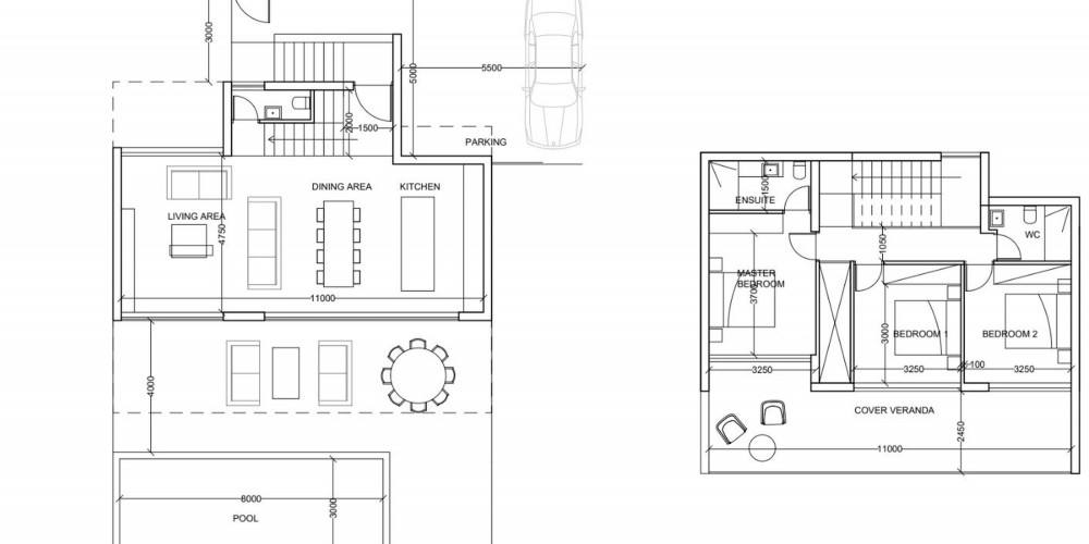
Located on the coastal area of Chloraka, the project consists of 3 lavish villas where family life is enriched by the peaceful area, the magnificent views and the luck of being at a key point location.
Specifications:
Decking works
Double glazed upgraded aluminium windows
Heigh ceiling construction
Conc...
Located on the coastal area of Chloraka, the project consists of 3 lavish villas where family life is enriched by the peaceful area, the magnificent views and the luck of being at a key point location.
Specifications:
- Decking works
- Double glazed upgraded aluminium windows
- Heigh ceiling construction
- Concealed air-conditions in living area and in master bedroom
- High quality sanitary ware
- Custom kitchen design
The Project has EPC certificate with "B" Energy Efficiency Rating.
Area & Prices
All units sold or reserved.
Sold & Reserved Properties
1
- Villa
Beds:
4
Area:
247 m2
Sold
2
- Villa
Beds:
3
Area:
214 m2
Sold
3
- Villa
Beds:
3
Area:
214 m2
Sold
Map Location
Related Projects
S795 - 2 modern blocks of apartments with sea views and in walking distance to the beach in Chlorakas, Paphos
S885 - A collection of 15 villas nestled on the foothills of the lower Chloraka area, offering breathtaking sea views
T019 - A residential development consisting of 12 modern homes located in the coastal area of Chloraka, Paphos
T065 - 4-bedroom villas with spacious interiors, modern comfort and elegant contemporary style in Paphos
Заголовок
X


