S482 - Sea view villas in 900 meters to the sea in Chlorakas, Paphos
Property status:
Project delivered
Location:
Cyprus, Paphos, Chlorakas (nearest northern suburb of Paphos)





Villas are located next to the privileged area of Coral Bay and the Akamas Peninsula, a highly protected area of breathless natural beauty with one of the most famous sandy beaches in Cyprus, the Lara beach, only a few minutes away.
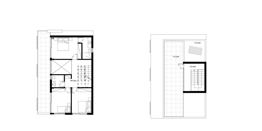
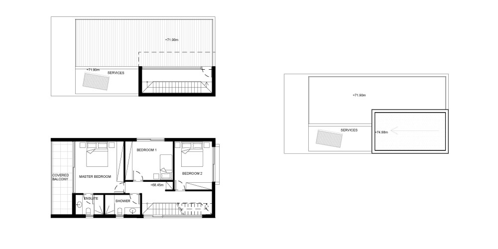
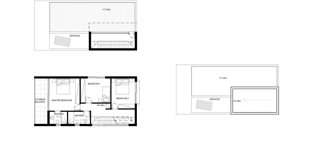
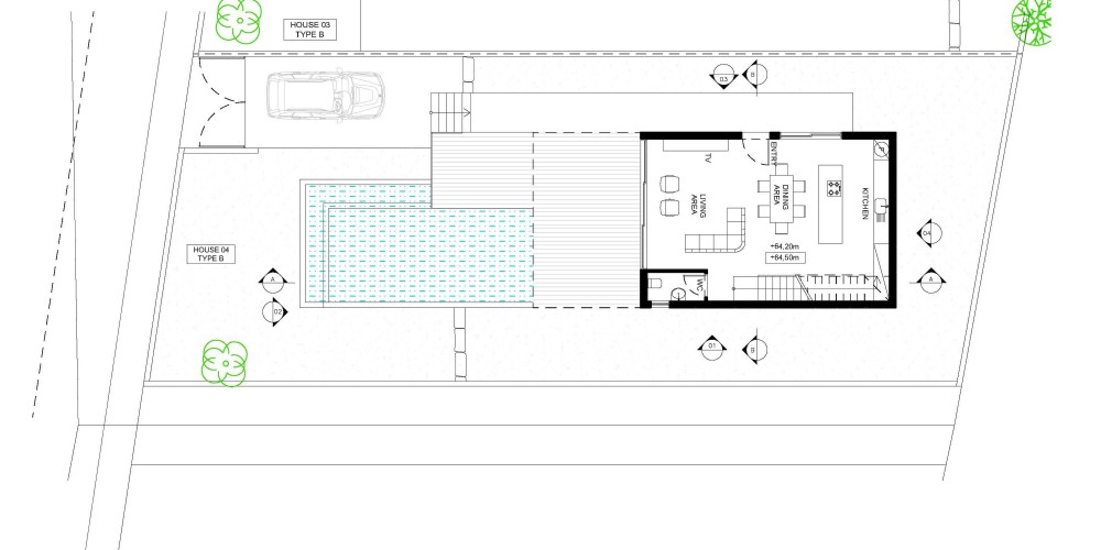
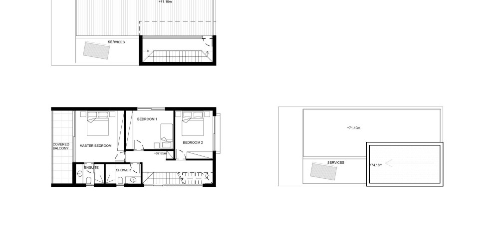
The villas will be constructed to the highest standards with private swimming pools, large verandas a...
Villas are located next to the privileged area of Coral Bay and the Akamas Peninsula, a highly protected area of breathless natural beauty with one of the most famous sandy beaches in Cyprus, the Lara beach, only a few minutes away.
The villas will be constructed to the highest standards with private swimming pools, large verandas and sun terraces, BBQ areas and landscaped gardens overlooking the splendor of the Mediterranean sea.
The Project has EPC certificate with "B" Energy Efficiency Rating.
Area & Prices
All units sold or reserved.
Sold & Reserved Properties
3V
- Villa
Beds:
3
Area:
184 m2
Sold
Map Location
Related Projects
S795 - 2 modern blocks of apartments with sea views and in walking distance to the beach in Chlorakas, Paphos
S885 - A collection of 15 villas nestled on the foothills of the lower Chloraka area, offering breathtaking sea views
T019 - A residential development consisting of 12 modern homes located in the coastal area of Chloraka, Paphos
Заголовок
X








