R99 - Sea view villa in Limassol, Agios Tychonas area
Property status:
Project delivered
Location:
Cyprus, Limassol, Ag. Tychonas district














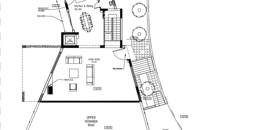
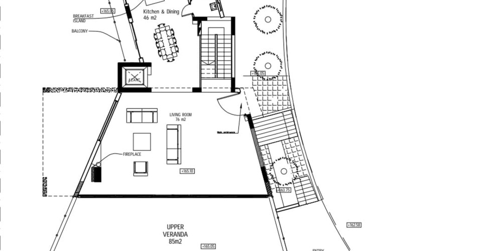
The villa is L shaped, oriented to take advantage of the views, but the same time it is protected from excessive sun and wind exposure. There are no “back” rooms, all rooms have a view; even the car parking area. The design for both the exterior and interior is contemporary, original and unique.
Villa was built using the most up-...
The villa is L shaped, oriented to take advantage of the views, but the same time it is protected from excessive sun and wind exposure. There are no “back” rooms, all rooms have a view; even the car parking area. The design for both the exterior and interior is contemporary, original and unique.
Villa was built using the most up-to-date ecological materials.
The villa is located in the hills east of the town of Limassol. The Mediterranean sea is in a five minutes drive distance.
Both Larnaca and Paphos international airports can be reached in 45 minutes.
Some other features of the villa:
- KONE Elevator
- 8 x 4 Infinity Pool
- Covered 2-Car Garage
- Outdoor Hot Tub
- Smart Home Features
The Project has EPC certificate with "A" Energy Efficiency Rating.
Area & Prices
1
- Villa
Beds:
8
Area:
737 m2
Plot:
824 m2
€ 4,500,000 + VAT
Inside Area:
737 m2
Price per sq.m:
€ 6,106
Parking Place:
2
Bathrooms / Toilets:
7
Swimming Pool:
private
Additional Information
×
Map Location
Related Projects
E47 - Luxury villa in a prestigious district of Limassol (Ag. Tychonas) on a hill overlooking the sea and the mountains
G69 - Stylish villas in a prestigious district of Limassol (Ag. Tychonas) on a hill overlooking the sea and the mountains
H71 - Modern villas with unobstructed sea views in a prestigious district of Limassol (Ag. Tychonas)
J63 - Prestigious, detached villas with breath-taking sea, mountain and village views (in Agios Tychonas)
S593 - A spacious villa with well designed living areas and breathtaking view of the valley, the Mediterranean Sea and the surrounding countryside in Limassol
Weather
22
November
2025
Rome
Light rain showers
16 °C
Limassol
Cloudy
-1 °C
London
Rain
9 °C
Заголовок
X



