B125 - Maisonettes with a shared swimming pool in Agios Tychonas, Limassol
This residential development is located in the quiet area of Agios Tychonas, Limassol, and consists of nine modern maisonettes. Situated just a short drive from the city, the project offers a peaceful living environment with convenient access to key amenities and transport routes. Its layout is designed to meet a range of lifestyle needs, making it suitable for both residential use and investment.
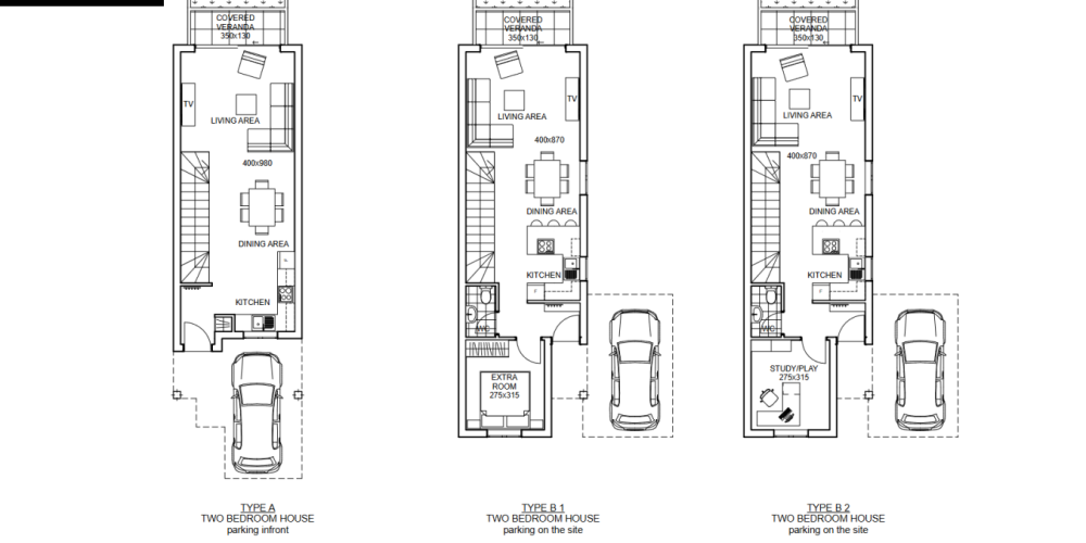
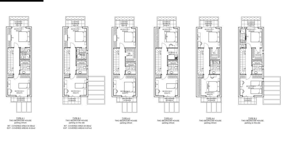
Each maisonette includes two main living levels and features a lower ground space with water and electricity connections. This auxiliary area, while not included in the main living specifications, may be adapted into additional or independent living space if desired. In addition, each unit has a rooftop laundry area that may also be converted into an extra bedroom or other living function, depending on personal requirements.
Residents of the complex have access to a shared swimming pool, and each property includes practical internal layouts, modern finishes, and private outdoor space. The development is positioned near local schools, supermarkets, public transport, and within easy reach of the coastline and Limassol’s urban center.
The project is divided into two construction phases. The first phase includes maisonettes numbered 1–6 and is scheduled for completion in the third quarter of 2025. The second phase, which includes maisonettes 7–9, is expected to be completed by the third quarter of 2026.
Buyers may benefit from flexible installment payment options. Additionally, a reduced VAT rate of 5% is available for eligible first-time homebuyers in accordance with local tax regulations.
The main features of the project and the units:
- Located in Agios Tychonas, Limassol
- 9 maisonettes
- Two-bedroom units with additional auxiliary space
- Shared swimming pool for all residents
- Lower ground area with water and electricity connections (convertible space)
- Rooftop laundry area with potential for conversion (e.g., extra bedroom)
- Phase 1 (units 1–6) completion: Q3 2025
- Phase 2 (units 7–9) completion: Q3 2026
- Option to purchase in installments
- Reduced VAT (5%) for eligible first-time homebuyers
- Quiet residential neighborhood
- 500 m to nearest bus stop
- 500 m to school
- 700 m to supermarket
- 3 km to the beach
- 10 km to Limassol city center
- Easy access to major roads
- Suitable for residential use or investment
- Potential for rental income and value growth
- Modern design with quality finishes and functional layouts
The project has an EPC certificate with “A” energy efficiency rating.










