S333 - Villas, offering picturesque views, located in Peyia, Paphos
Property status:
Delivery - March 2027
Location:
Cyprus, Paphos, Peyia (resort destination north of Paphos located on a hill with beautiful views)
The development is located in the prestigious Sea Caves area in Paphos. It comprises of 13 villas with ample outdoor space, maximum privacy and beautiful views.
Some of the features of the complex:
Swimming pool
Italian manufactured floors
4 bedrooms including a master suite
Underfloor heating with wate...
The development is located in the prestigious Sea Caves area in Paphos. It comprises of 13 villas with ample outdoor space, maximum privacy and beautiful views.
Some of the features of the complex:
- Swimming pool
- Italian manufactured floors
- 4 bedrooms including a master suite
- Underfloor heating with water
- Photovoltaic system with solar panels
- Electric gate and electric car chargers
- VRV cooling system, offering customizable climate control
- High ceilings and high doors in all rooms
- Spacious living, dinning and kitchen area
- Provisions for external and internal shutters
- Full thermal insulation
- Energy-efficient slimline aluminium windows
- Bathrooms equipped with walk-in showers, safety glass and wall-mounted toilets
- Security system with alarm and CCTV
- Barbeque area at kitchen level
Prices include swimming pool, 10.1 kW photovoltaic system with solar panels, VRV for cooling, underfloor heating, alarm system, electric gate/charger. Furniture package from €50.000 + VAT.
The Project has EPC certificate with "A" Energy Efficiency Rating.
Area & Prices
2-14
- Villa
Beds:
4
Area:
251 m2
Plot:
750 m2
€ 930,000 + VAT
Inside Area:
207 m2
Covered Veranda:
44 m2
Price per sq.m:
€ 3,705
Storage Room:
Yes
Parking Place:
2
Swimming Pool:
private
Additional Information
×
2-16
- Villa
Beds:
4
Area:
260 m2
Plot:
732 m2
€ 1,640,000 + VAT
Inside Area:
205 m2
Covered Veranda:
55 m2
Price per sq.m:
€ 6,308
Storage Room:
Yes
Parking Place:
2
Swimming Pool:
private
Additional Information
×
2-15
- Villa
Beds:
4
Area:
264 m2
Plot:
720 m2
€ 1,620,000 + VAT
Inside Area:
205 m2
Covered Veranda:
59 m2
Price per sq.m:
€ 6,136
Storage Room:
Yes
Parking Place:
2
Swimming Pool:
private
Additional Information
×
Sold & Reserved Properties
1
- Villa
Beds:
4
Area:
319 m2
Reserved
2
- Villa
Beds:
4
Area:
313 m2
Reserved
3
- Villa
Beds:
4
Area:
323 m2
Reserved
4
- Villa
Beds:
4
Area:
333 m2
Reserved
5
- Villa
Beds:
4
Area:
342 m2
Reserved
6
- Villa
Beds:
4
Area:
257 m2
Reserved
7
- Villa
Beds:
4
Area:
257 m2
Reserved
8
- Villa
Beds:
5
Area:
407 m2
Reserved
9
- Villa
Beds:
4
Area:
267 m2
Reserved
10
- Villa
Beds:
4
Area:
267 m2
Reserved
11
- Villa
Beds:
4
Area:
262 m2
Reserved
12
- Villa
Beds:
4
Area:
267 m2
Reserved
13
- Villa
Beds:
4
Area:
320 m2
Reserved
Map Location
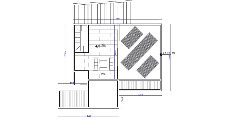
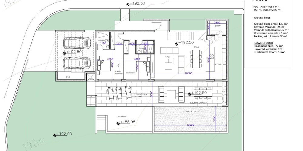
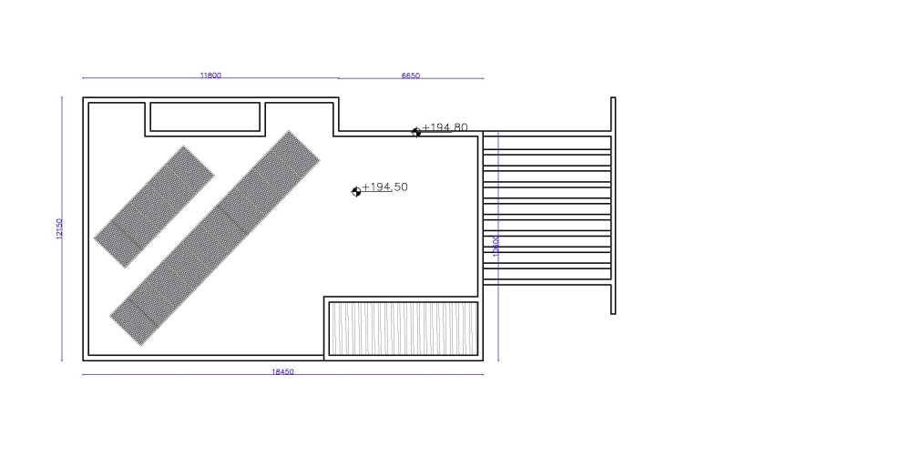
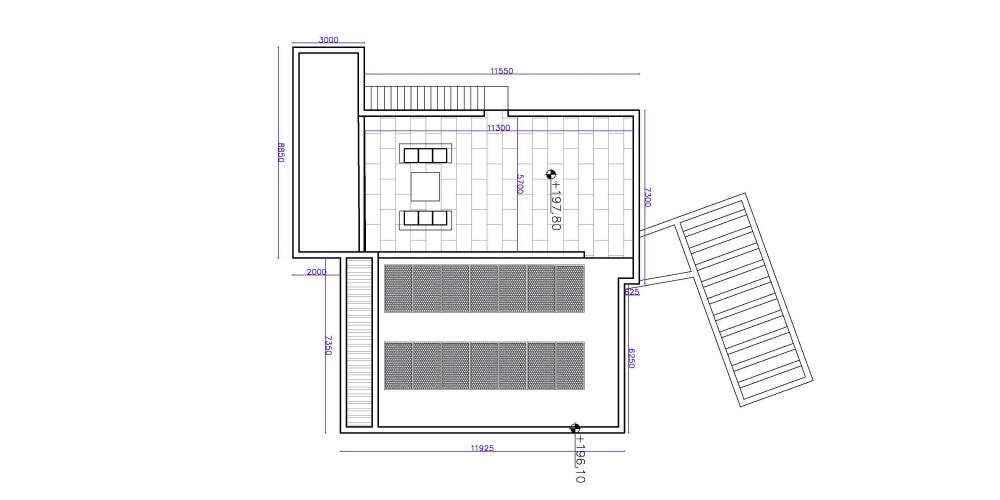
Site Map & Floor Plans












































