S616 - A contemporary commercial building for investment, offering a comprehensive and functional layout for businesses in Limassol
A unique six floor office building in Limassol for savvy investors. With its prime location offering stunning views of the bustling cityscape, this centre is a magnet for established businesses and startups seeking a prestigious and convenient workspace.
This commercial property offers a comprehensive and functional layout for businesses. Upon entering the building, you are welcomed into a spacious, inviting lobby.
6 floors of open-space offices
These floors are presented in a "shell core" condition, allowing for maximum flexibility and customization according to the needs and preferences of the new owner.
The open space design allows for future occupants to configure the layout, partitions and amenities to suit their specific requirements and cater to various businesses.
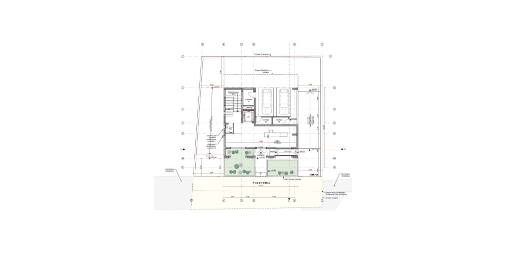
This Business Center includes a two level underground parking facility. It provides space for parking of 18 cars.
The Project has EPC certificate with "B" Energy Efficiency Rating.
All units sold or reserved.












