A0101 - Офисное здание в престижном районе Лимассола
Статус недвижимости:
Завершение строительства - Декабрь 2025г
Расположение:
Кипр, Лимассол, Гермасойа (район в северо-восточной части Лимассола)
Этот современный бизнес-центр класса "А" предлагает возможность создать идеальные условия для работы и творчества. В каждой детали офисов и общих зон гармонично сочетаются уникальные интерьерные решения и современная функциональность. Панорамное остекление способствует сохранению естественного освещения и открывает потрясающие виды на Средиземное море, го...
Этот современный бизнес-центр класса "А" предлагает возможность создать идеальные условия для работы и творчества. В каждой детали офисов и общих зон гармонично сочетаются уникальные интерьерные решения и современная функциональность. Панорамное остекление способствует сохранению естественного освещения и открывает потрясающие виды на Средиземное море, горы и город. Даже крыша представляет собой отдельную зону для отдыха и встреч. Для сотрудников предусмотрены зеленый сад и площадка для барбекю.
Основные особенности проекта :
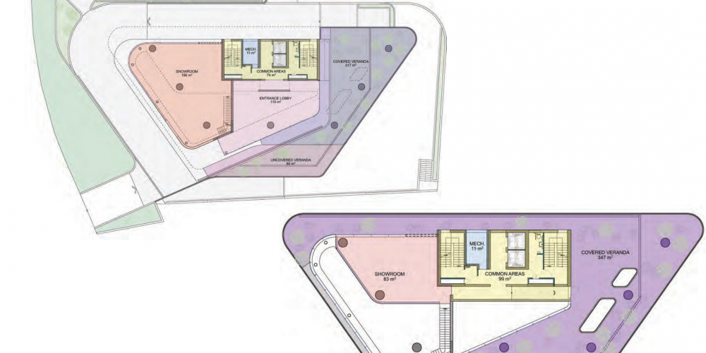
- Полная функциональность: Здание оснащено всем необходимым для продуктивной работы, отдыха и спорта. Тренажерный зал, уютное кафе, конференц-залы, стильный холл, представительские офисы различной площади, охраняемая двухэтажная автостоянка.
- Высококачественная инфраструктура и оснащение.
- Интеллектуальные системы автоматизации, энергоэффективный дизайн и экологически чистые материалы.
Площади и Цены
1
- Офис
Площадь:
5156 m2
€ 45,000,000 + НДС
Внутренняя Площадь:
5156 m2
Цена за кв.м:
€ 8,728
Дополнительная информация
×
Расположение на карте
Схемы и планы
Погода
25
Октября
2025










