S798 - Элитное жилое здание в Лимассоле, отличающийся элегантностью и элементами японской архитектуры
Статус недвижимости:
Строительство завершено
Расположение:
Кипр, Лимассол, туристический район
Это жилое бутик здание, вдохновлено элегантностью и японской архитектурой. Проект состоит всего из четырех квартир на весь этаж, каждая из которых спроектирована так, чтобы предложить обширное жилое пространство.
С одной квартирой на этаже жильцы могут наслаждаться ощущением пентхауса, усиленным естественным солнечным светом, благодаря ориентации ...
Это жилое бутик здание, вдохновлено элегантностью и японской архитектурой. Проект состоит всего из четырех квартир на весь этаж, каждая из которых спроектирована так, чтобы предложить обширное жилое пространство.
С одной квартирой на этаже жильцы могут наслаждаться ощущением пентхауса, усиленным естественным солнечным светом, благодаря ориентации здания на юг.
Район предлагает спокойную обстановку для жизни, в пешей доступности от пляжа, а также других удобств.
Основные преимущества:
- Центральная система кондиционирования VRV
- Фотогальванические системы и “net metering” для каждой квартиры
- Подогрев пола
- Подъемно-раздвижные двери из термического алюминия, от пола до потолка
- Видеофон с распознаванием лиц
- Консультация по дизайну интерьера
- Автоматические ворота для парковки
- Водонагреватель с управлением по Wi-Fi
- Подзарядка электромобиля для каждой квартиры.
Проект имеет сертификат энергоэффективности Class "A".
Площади и Цены
Юниты проданы либо зарезервированы.
Продано & Зарезервировано
101
- Апартаменты
Спальни:
2
Площадь:
106 m2
Продано
102
- Апартаменты
Спальни:
1
Площадь:
65 m2
Продано
103
- Апартаменты
Спальни:
2
Площадь:
96 m2
Зарезервировано
201
- Апартаменты
Спальни:
2
Площадь:
107 m2
Зарезервировано
202
- Апартаменты
Спальни:
2
Площадь:
81 m2
Зарезервировано
203
- Апартаменты
Спальни:
2
Площадь:
98 m2
Зарезервировано
301
- Апартаменты
Спальни:
2
Площадь:
107 m2
Зарезервировано
302
- Апартаменты
Спальни:
2
Площадь:
81 m2
Зарезервировано
303
- Апартаменты
Спальни:
2
Площадь:
98 m2
Зарезервировано
401
- Апартаменты
Спальни:
2
Площадь:
195 m2
Зарезервировано
402
- Апартаменты
Спальни:
2
Площадь:
160 m2
Зарезервировано
403
- Апартаменты
Спальни:
2
Площадь:
180 m2
Зарезервировано
Расположение на карте
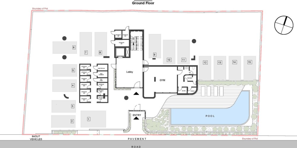
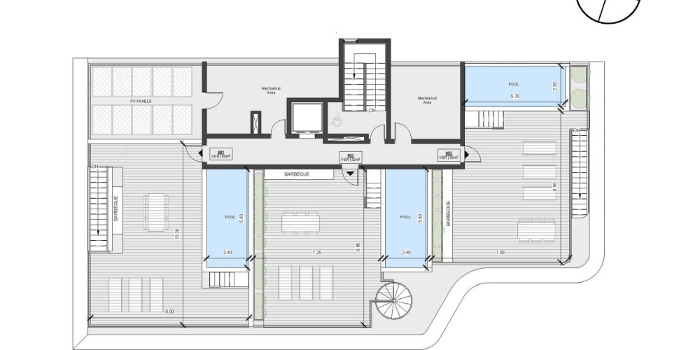
Схемы и планы
Погода
26
Октября
2025














