A0122 - Вилла рядом с пляжем в районе Chlorakas, Пафос
Статус недвижимости:
Завершение строительства - 12-14 месяцев с начала строительства
Расположение:
Кипр, Пафос, Хлоракас (ближний северный пригород Пафоса)




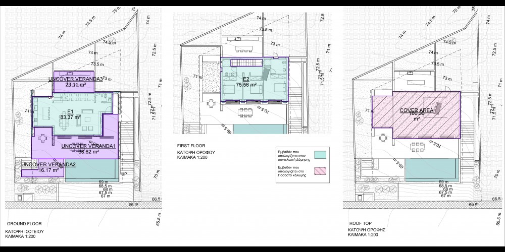
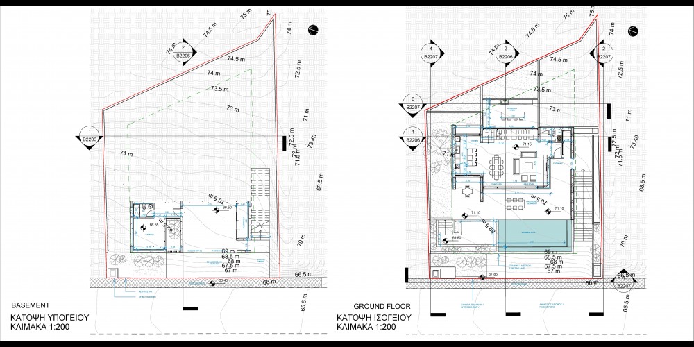
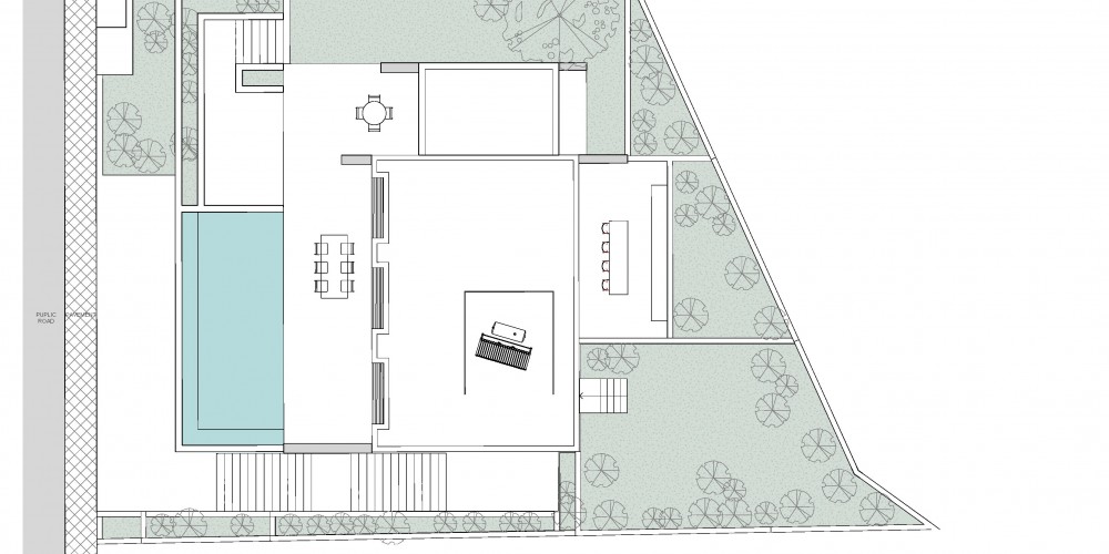
Площади и Цены
1
- Вилла
Спальни:
3
Площадь:
267 m2
Участок:
532 m2
€ 1,200,000 + НДС
Внутренняя Площадь:
159 m2
Открытая веранда:
108 m2
Цена за кв.м:
€ 4,494
Кладовая:
Да
Парковка:
1
Бассейн:
собственный
Дополнительная информация
×
Расположение на карте
Похожие объекты
F09 - Апартаменты в пригороде Пафоса (Хлоракас) недалеко от моря - объект вторичного рынка недвижимости
F13 - Виллы в пригороде Пафоса (Хлоракас) с хорошими видами недалеко от моря - вторичная недвижимость
S795 - Современные квартиры в комплексе из 2-х блоков с видом на море и в пешей доступности от пляжа в Хлоракас, Пафос
S885 - Комплекс из 15 вилл, расположенных на холмах в нижней части Хлораки, откуда открывается захватывающий вид на море
T019 - Жилой комплекс, состоящий из 12 современных домов, расположенный в прибрежной зоне Хлорака, Пафос
Заголовок
X









