S482 - Виллы с видами на море в 900 метрах до моря в Хлоракас, Пафос
Статус недвижимости:
Строительство завершено
Расположение:
Кипр, Пафос, Хлоракас (ближний северный пригород Пафоса)





Виллы расположены рядом с Корал Бэй и полуостровом Акамас, высоко охраняемой территорией с захватывающей дух природной красотой, всего в нескольких минутах ходьбы от одного из самых известных песчаных пляжей Кипра, пляжа Лара.
Виллы будут построены по самым высоким стандартам с частными бассейнами, большими верандами и террасами, зонами для барбек...
Виллы расположены рядом с Корал Бэй и полуостровом Акамас, высоко охраняемой территорией с захватывающей дух природной красотой, всего в нескольких минутах ходьбы от одного из самых известных песчаных пляжей Кипра, пляжа Лара.
Виллы будут построены по самым высоким стандартам с частными бассейнами, большими верандами и террасами, зонами для барбекю и ландшафтными садами, с видом на Средиземного моря.
Проект имеет сертификат энергоэффективности Class "B".
Площади и Цены
Юниты проданы либо зарезервированы.
Продано & Зарезервировано
3V
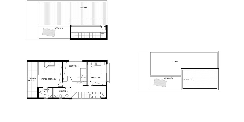
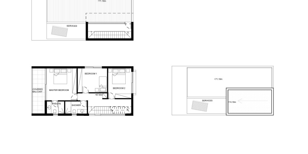
- Вилла
Спальни:
3
Площадь:
184 m2
Продано
Расположение на карте
Похожие объекты
F09 - Апартаменты в пригороде Пафоса (Хлоракас) недалеко от моря - объект вторичного рынка недвижимости
F13 - Виллы в пригороде Пафоса (Хлоракас) с хорошими видами недалеко от моря - вторичная недвижимость
S795 - Современные квартиры в комплексе из 2-х блоков с видом на море и в пешей доступности от пляжа в Хлоракас, Пафос
S885 - Комплекс из 15 вилл, расположенных на холмах в нижней части Хлораки, откуда открывается захватывающий вид на море
T019 - Жилой комплекс, состоящий из 12 современных домов, расположенный в прибрежной зоне Хлорака, Пафос
T065 - Виллы с 4 спальнями, просторными интерьерами, современным комфортом и элегантным современным стилем в Пафосе
Заголовок
X








