P39 - Виллы и дуплексы в 400 метрах от моря в Хлоракас, Пафос
Это роскошный уголок для тех, кто ценит эксклюзивность и элегантность. Комплекс расположен на побережье района Хлорака, всего в нескольких минутах езды от гавани Пафоса. Легкий доступ к автобусному маршруту означает, что вам не обязательно иметь автомобиль, чтобы посетить интересные места, такие как песчаные пляжи Коралловой бухты, археологические парки, рестораны, бары и торговый центр Kings Avenue Mall.
В отделке использованы традиционные материалы, такие как натуральный камень и дерево, создающие синергию с современными архитектурными элементами, в числе которых большие окна, открытые пространства и современные интерьеры.
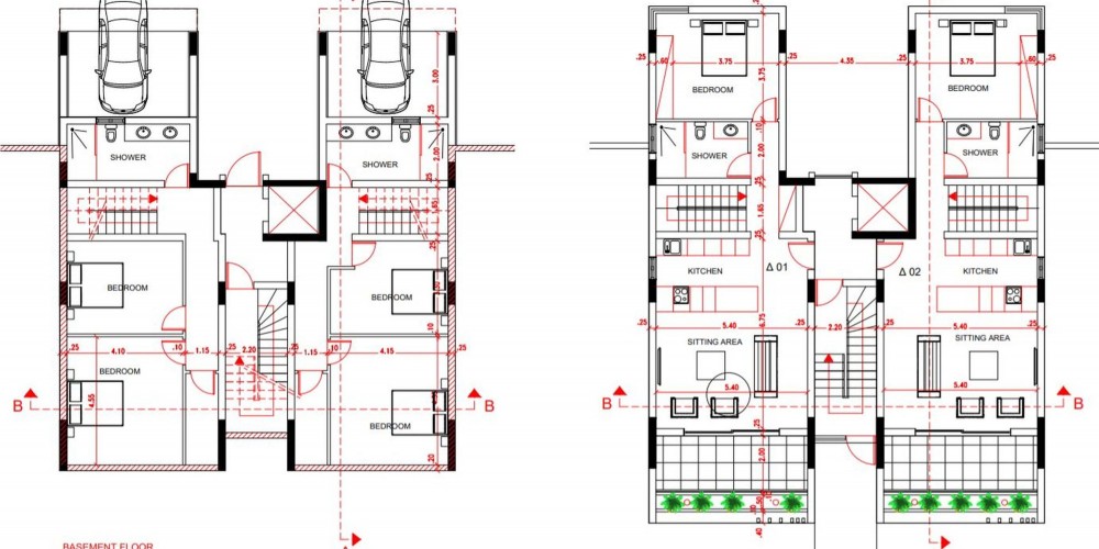
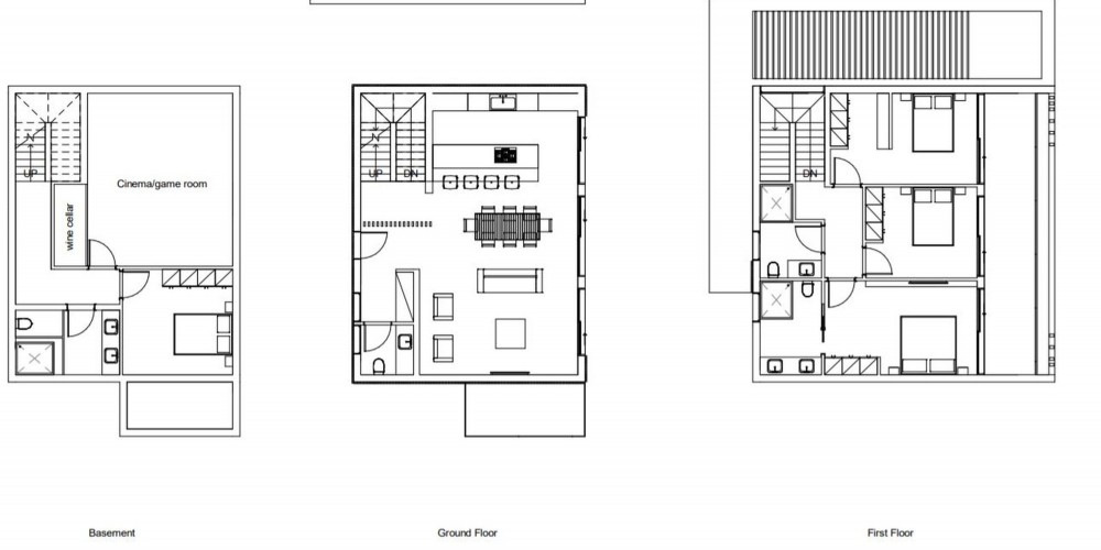
Виллы с 3 или 4 спальнями. Часть проекта, расположенная ближе к морю, состоит из восьми отдельно стоящих вилл, каждая с собственным бассейном. На первом этаже каждой виллы вы найдете просторную гостиную и кухню/столовую открытой планировки. Есть также гостевой туалет. На втором этаже находятся три просторные спальни, семейная ванная комната и смежная душевая комната в главной спальне. Кроме того, существует цокольный уровень, который может быть перепланирован в соответствии с потребностями клиента (в качестве гостевой зоны, комнаты для хобби, офиса и т. д.)
Дуплексы с 3 спальнями. Параллельно виллам на небольшом возвышении находится закрытый комплекс из 6 блоков, каждый из которых состоит из четырех двухэтажных объектов с 3 спальнями. Верхние дуплексы предлагают большие веранды с великолепным видом на Средиземное море. Все блоки оснащены лифтами.
Два больших общих бассейна в курортном стиле окружены ухоженным садом и просторным деревянными настилом с многочисленными шезлонгами. Существует также небольшой бассейн для детей и зона дзен для отдыха и медитации, а также зона СПА в подземном уровне (с сауной, парной и тренажерным залом).
- Цены на дуплексы включают полы с подогревом.
- Цена виллы 12 включает в себя скрытый кондиционер, полы с подогревом, бассейн и полукрытую зону для барбекю.
- Частные бассейны за дополнительную плату 25.000 + НДС за 3x7 м, 30.000 + НДС за 10x3,5 м.
Проект имеет сертификат энергоэффективности Class "B".
Юниты проданы либо зарезервированы.














