L06 - Комплекс современных вилл в 400 метрах от моря в Хлоракас, Пафос
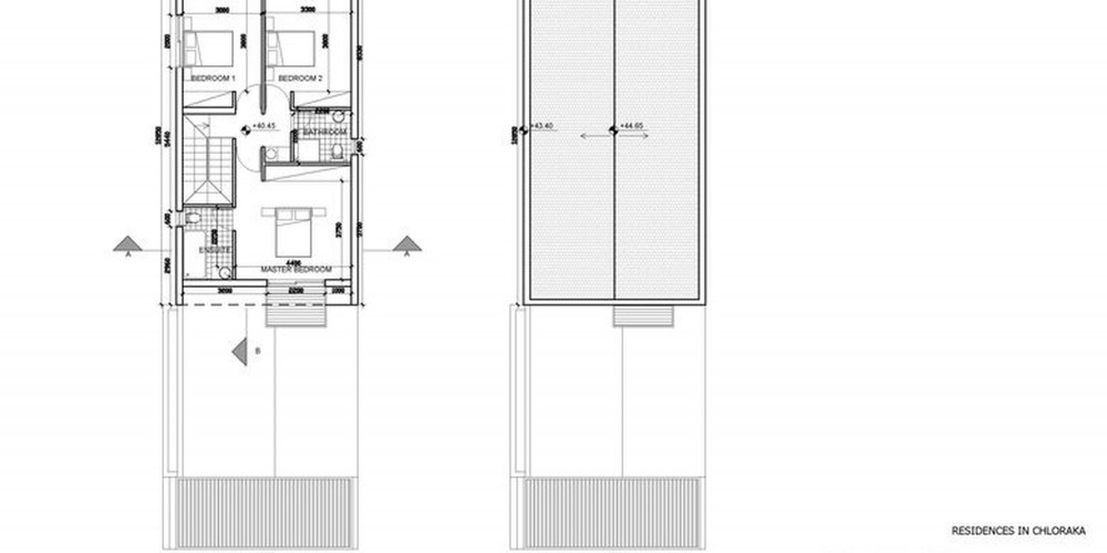
Проект расположен в прибрежной зоне поселка Хлорака, очень популярном туристическом районе Пафоса, в шаговой доступности от одних из лучших отелей в регионе. В нескольких минутах езды находится недавно модернизированное и очень популярное авеню Tombs of the Kings, а также самый крупный торговый центр Пафоса "Kings Avenue Mall". Традиционные архитектурные черты этих вилл, такие как двухскатные крыши и использование натурального камня, создают диалог с современными архитектурными элементами, включающими в себя большие окна и просторные интерьеры с раздвижными дверьми. Двухскатная кровля не только придаёт виллам уютную домашнюю атмосферу и строгий классический характер, но и делает их незаурядными на фоне домов с плоскими крышами, традиционно используемыми на Кипре. Каждая вилла является 3-этажным отдельно стоящим строением с частным приусадебным участком. На первом этаже расположена просторная гостиная, кухня и столовая (открытого плана). Окна в пол не только заливают гостиную солнечным светом, но и открывают вид на бассейн. На верхнем этаже расположены три спальни со встроенными плательными шкафами. Очень просторная главная спальня совмещена с душевой. На этом этаже есть вторая ванная комната. Большое внимание уделяется жизни на свежем воздухе. Красиво благоустроенные и озеленённые приусадебные участки идеально подойдут для проведения досуга в летнее время на лоне природы. Наружная обеденная зона представляет особый интерес, поскольку она оснащена стационарным барбекю и покрыта деревянной перголой для создания дополнительного уюта и затенённости.
Проект имеет сертификат энергоэффективности Class "B"Юниты проданы либо зарезервированы.








