B164 - Апартаменты с видом на море в Агия Фила, Лимассол













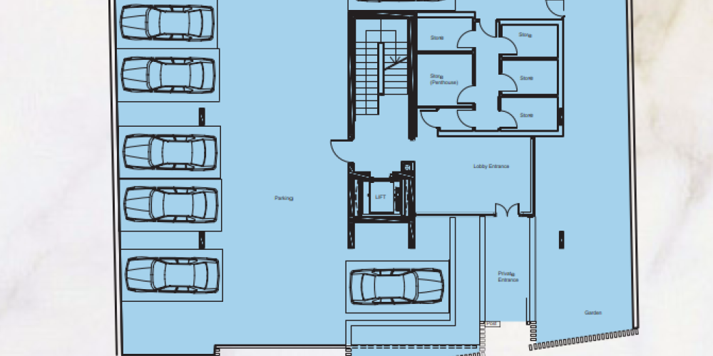
Жилой комплекс состоит из пяти апартаментов в малоэтажном здании и сочетает в себе функциональную планировку с повышенной энергоэффективностью. В состав комплекса входят четыре квартиры с двумя спальнями и один пентхаус с тремя спальнями и частным выходом на крышу. Из всех апартаментов открываются панорамные, ничем не загороженные виды на Лимасол и море.
Двухспальные квартиры предлагают продуманные жилые пространства и просторные веранды. Квартиры на первом этаже дополнительно располагают собственными садами площадью от 45 до 65 м². Пентхаус на верхнем этаже включает в себя приватный сад на крыше, общая площадь которого составляет 296,5 м².
Комплекс расположен в жилом районе на окраине Лимасола, всего в 5 км от центра города и побережья. Все апартаменты спроектированы с учетом требований к конфиденциальности, рациональной планировке и современным стандартам энергоэффективности. Проект соответствует классу энергоэффективности A.
Основные характеристики проекта и квартир:
- Всего 5 жилых единиц
- Четыре квартиры с двумя спальнями
- Один пентхаус с тремя спальнями и частным садом на крыше
- Панорамный вид на Лимасол и море
- Квартиры на первом этаже с частными садами (45–65 м²)
- Расположение в 5 км от центра города и моря
Сертификат энергоэффективности класса A
Юниты проданы либо зарезервированы.




