B257 - Современные апартаменты с панорамным видом на море в Агия Фила, Лимассол
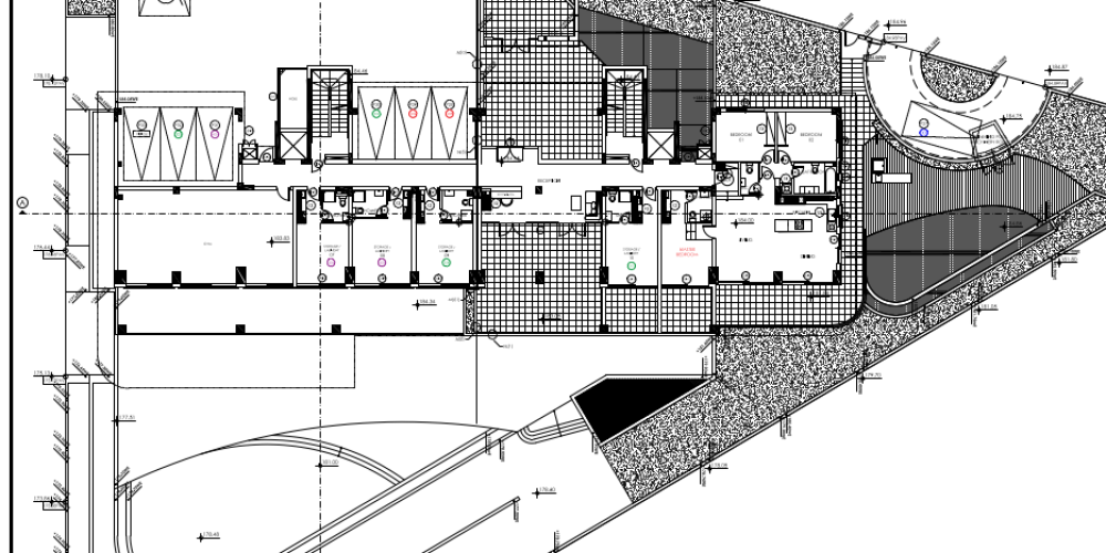
Новый жилой комплекс в Лимасоле включает современные апартамента, в том числе три пентхауса и “виллу” с частным бассейном. Расположенный в районе Айя Филаксис, он сочетает уединение и удобную доступность, находясь рядом с международными школами, важными объектами инфраструктуры и ключевыми достопримечательностями города. Проект выполнен в современном архитектурном стиле с высококачественной отделкой и панорамными видами на Средиземное море и городской пейзаж Лимасола.
Жильцы комплекса могут пользоваться разнообразными удобствами: открытым инфинити-бассейном, тренажерным залом, хаммамом, сауной, массажным кабинетом и благоустроенным садом. Также предусмотрены частный лаунж для резидентов, игровая зона и библиотека, создающие эксклюзивную жилую среду.
Важное внимание уделено безопасности и комфорту: круглосуточный консьерж-сервис, подземная парковка, технология «умный дом» и современная система безопасности. Использование высококачественных материалов, теплоизолированных окон и энергоэффективных решений обеспечивает долгосрочную ценность как для владельцев, так и для инвесторов.
Основные характеристики проекта и объектов:
- Высокие потолки (3 м)
- Панорамные окна с двойным остеклением
- Итальянские кухни и премиальная отделка
- Система «умный дом»
- Теплый пол и кондиционирование VRV
- Открытый инфинити-бассейн
- Тренажерный зал, хаммам, сауна и массажный кабинет
- Круглосуточный консьерж и система безопасности
- Подземная парковка и индивидуальные кладовые
Проект имеет сертификат энергоэффективности класса "A".





















