S253 - Квартиры-студии гостиничного типа с обслуживанием в центре Лимассола
Проект предлагает 25 уютных квартир, расположенных в самом сердце исторического центра Лимассола. Удобное расположение обеспечивает легкий доступ ко многим удобствам центра города.
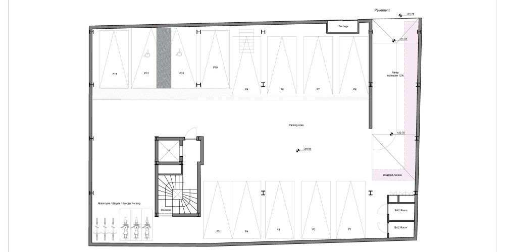
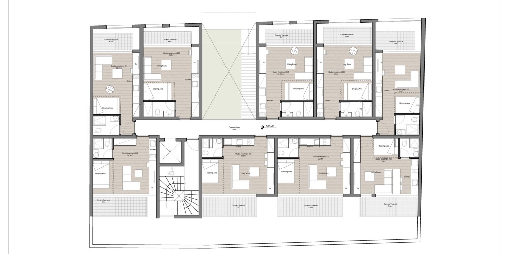
Комплекс будет состоять из 25 студий. На первом этаже будет расположен вестибюль, который является многоцелевой зоной для всех жильцов: для чтения, работы или просто отдыха. Студии будут иметь кухню открытой планировки, гостиную и спальную зону.
На четвертом этаже в саду на крыше есть все необходимое для отдыха: переливной бассейн с зоной для загара, барбекю и проектор для кино на стене под открытым небом.
Для тех, кто занимается спортом, полностью оборудованный тренажерный зал будет доступен круглый год.
Проект имеет сертификат энергоэффективности Class "A".
Юниты проданы либо зарезервированы.















