S526 - 3 блока квартир с общим переливным бассейном, ландшафтными садами, снэк-баром и лобби в Пафосе (Киссонерга)
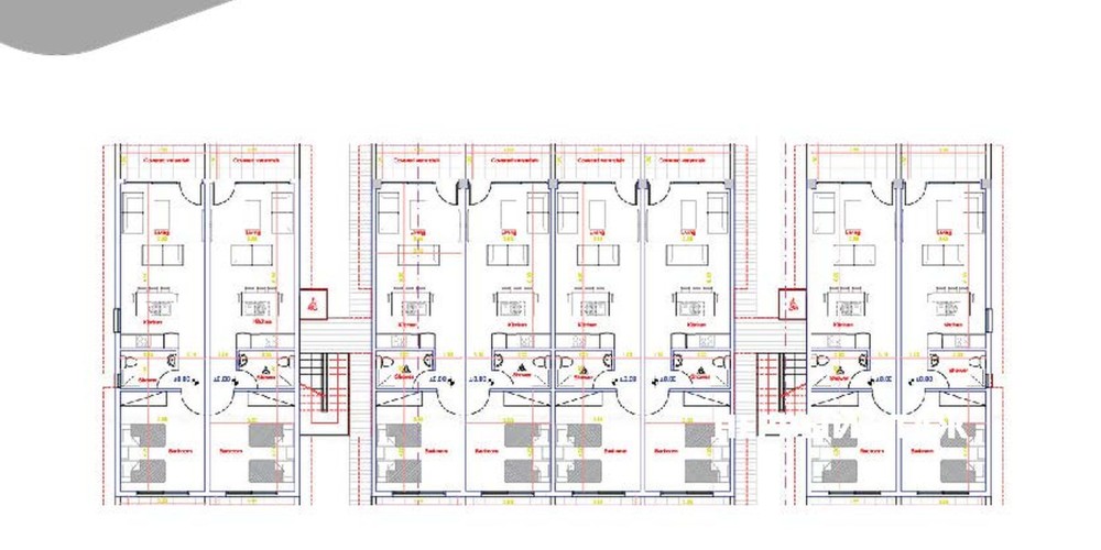
Комплекс состоит из 36 квартир, расположенных в трех одинаковых блоках, каждый из которых будет иметь большой общий переливной бассейн, ландшафтные сады, открытый снэк-бар и вестибюль.
Каждый блок состоит из восьми квартир с 1 спальней на первом этаже и четырех квартир с 2 спальнями на втором этаже. Все здания приспособлены для инвалидов.
Комплекс расположен в востребованном районе Киссонерга в Пафосе, одном из самых популярных районов для краткосрочной аренды на Кипре и одном из самых популярных для постоянного проживания в Пафосе. Близость проекта к морю и природный ландшафт района открывают жителям беспрепятственный вид на море, создавая идеальную среду.
Комплекс расположен всего в нескольких минутах езды от всех удобств и в нескольких минутах ходьбы от моря и ряда близлежащих отелей, баров и ресторанов.
Этот проект представляет собой прекрасную возможность как для независимых покупателей, так и для инвесторов.
Проект имеет сертификат энергоэффективности Class "A".
Юниты проданы либо зарезервированы.





