B175 - Вилла с 8 спальнями в районе Потамос Ермасойя (район Papas), Лимассол
Объект расположен в одном из самых обжитых жилых районов Лимассола — всего в нескольких минутах от моря, в окружении зрелой зелени. Это последний доступный для застройки жилой участок в этом районе: все соседние дома уже построены и заселены, что обеспечивает стабильную и спокойную жилую среду на долгие годы.
Вилла занимает угловой участок, который граничит с пешеходной дорожкой, общественной зелёной зоной и тупиковой улицей — это гарантирует минимальный уровень движения и ощущение уединения. При этом объект находится в шаговой доступности от всей необходимой инфраструктуры: пляжа, супермаркетов, школ и других удобств.
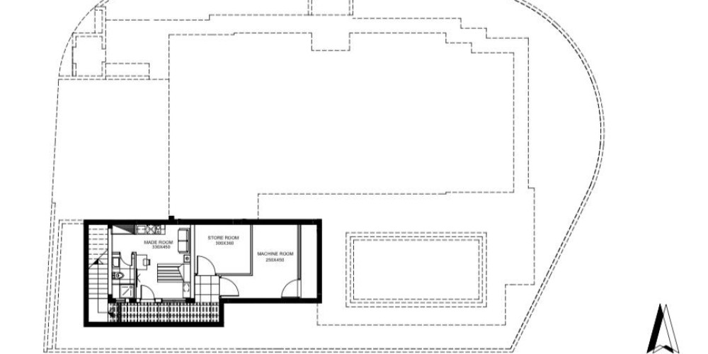
Проект включает три уровня, соединённых лифтом. Пространства спроектированы с учётом естественного освещения, функциональности и свободного перемещения между внутренней и внешней зонами. На первом этаже располагается мастер-спальня с прямым выходом в сад и к бассейну, кухня открытого типа, гостиная, кабинет, тренажёрный зал, кладовая и отдельная хозяйственная кухня.
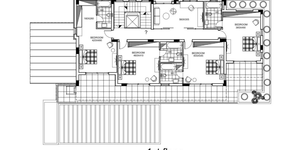
На втором этаже размещены четыре спальни с индивидуальными ванными комнатами, объединённые общей гостиной или игровой зоной. Также предусмотрены отдельные помещения для персонала с кухней и санузлом, просторный сад на крыше с видом на море и горы, автономная система водоснабжения (собственная скважина) и солнечные панели.
На текущем этапе строительства будущий владелец может полностью выбрать и согласовать все внутренние отделочные материалы. Вилла также предлагает дополнительные возможности: возможность надстроить третий этаж или разделить дом на два автономных жилых блока.
В центре сада растёт оливковое дерево возрастом более 300 лет — уникальный природный элемент, который входит в состав участка.
Основные характеристики виллы:
- 8 спален с гибкими вариантами планировки
- Площадь участка: 691 м²; крытая площадь: 550 м²
- Расположение в полностью застроенном жилом районе Потамос Ермасойя
- Пешая доступность до пляжа Дассуди и других объектов инфраструктуры
- Угловой участок: пешеходная зона, зелёная зона и тупиковая улица
- Мастер-спальня на первом этаже с выходом в сад и к бассейну
- Кухня открытого типа, отдельная хозяйственная кухня, тренажёрный зал и кабинет
- Четыре спальни с ванными комнатами на втором этаже и общей жилой зоной
- Жилое помещение для персонала с кухней и санузлом
- Сад на крыше с панорамным видом на море, город и горы
- Три крытых парковочных места
- Фотоэлектрическая система и собственная скважина
- Возможность строительства третьего этажа
- Возможность разделения на два автономных жилых блока
- Оливковое дерево возрастом более 300 лет на территории
- Полная возможность выбора отделки и материалов для интерьеров
Проект имеет сертификат энергоэффективности класса «А» (EPC).










